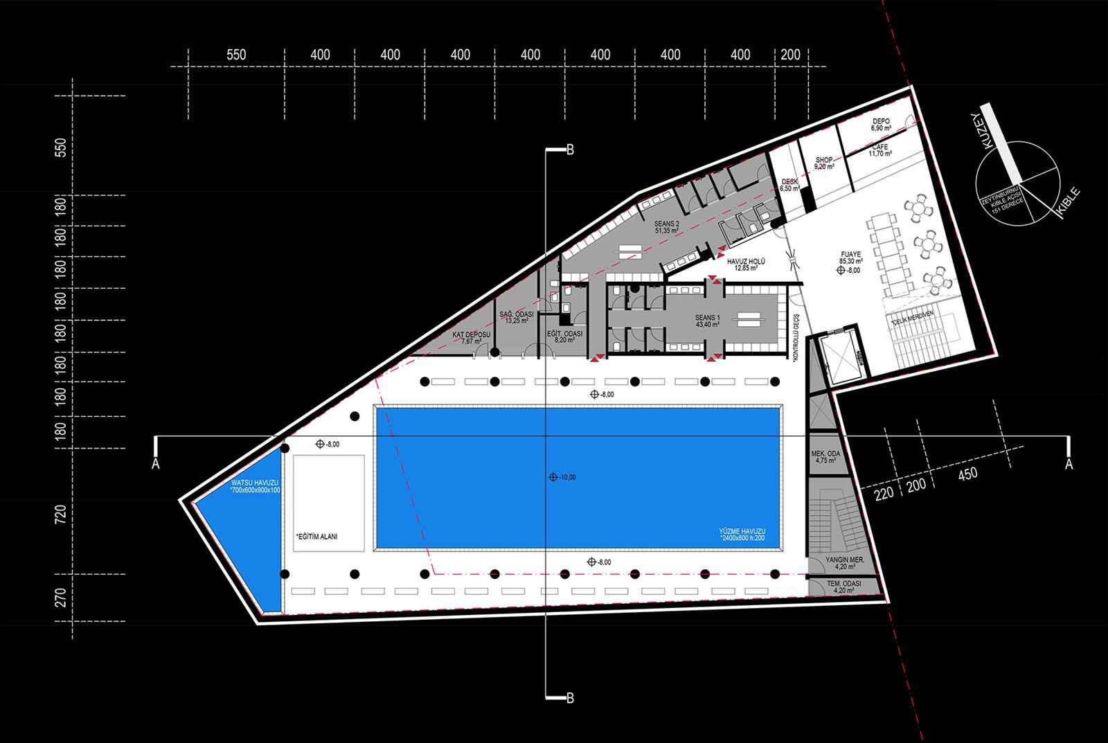
Yapı tasarım kararları; ihtiyaç programı, topografya, iklim, yönelim, konum, kamu tavrı, kültürel ve sosyal faktörler gibi pek çok bileşen bir araya gelerek oluşmuştur. Yapı tasarım alanı; mülkiyeti aynı kurum olan 4 farklı parselden oluşmaktadır. Yapı tasarım alanı; 4 farklı parselin tevhit edileceği toplam 900,65 m² ‘den oluşmaktadır. Parseller üzerinde yola terk ve yoldan ihdas işlemleri yapılacaktır. Yapı tasarım alanı; tevhit, yola terk ve yoldan ihdas işlemlerinden sonra 763,69 m² ‘dir. İhtiyaç programı dahilinde kapalı yüzme havuzu için istikamet sınırlarında maksimum alan kullanımı hedeflenmiştir.

Yüzme havuzu yapının toprak kot seviyesinin altına yerleştirilmiştir. Yapı tasarım alanı olarak; zemin üzerinde parselin maksimum seviyede kullanılabilir hacim kütlesi kapsamlı ihtiyaç programı dahilinde kullanılmıştır. Yapı tasarım alanında mevzuata göre yapılaşılabilir alan sınırlandrılmıştır. Tasarımda tüm imar ve mevzuat girdileri neticesinde yapılaşılabilir optimum kütle oluşturulmuştur. Bitişik nizam gereği komşu parseller ile münasebetin kesilmiş yapı yönünü köşesini tuttuğu yolların kesiştiği kavşağa vermiştir.

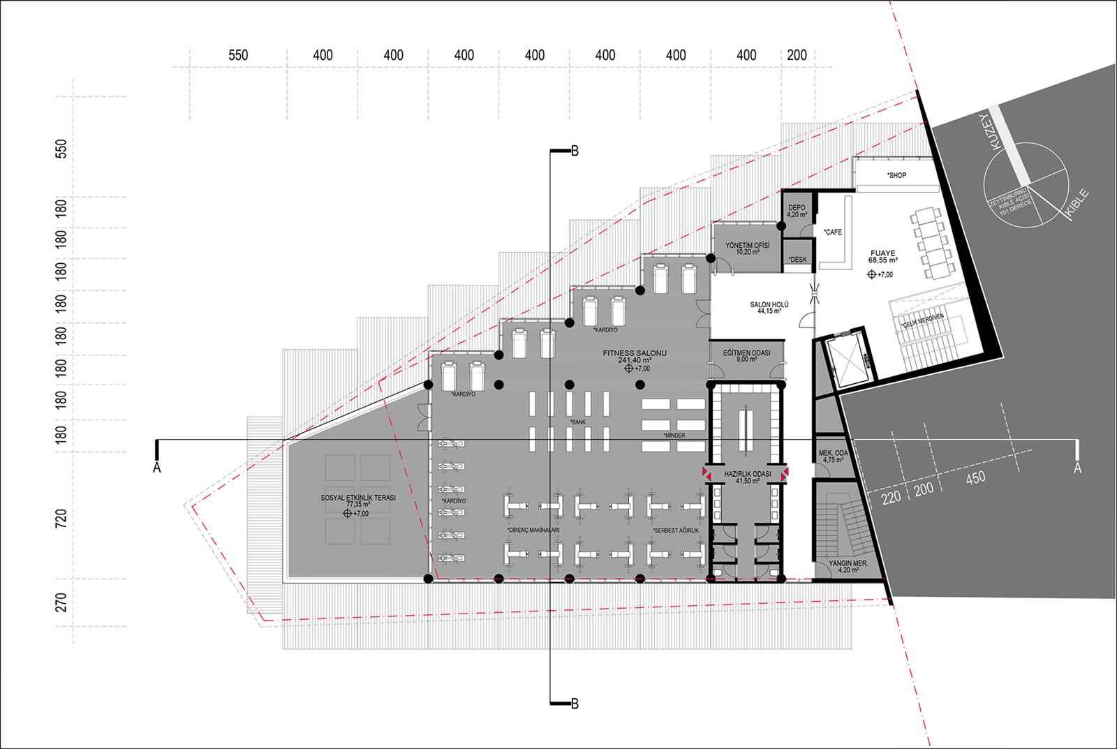
Mevcut komşu parseller ile ilişkinin maksimum seviyede kesilebilmesini destekler kalkan ve uzayan duvarlar oluşturulmuştur. Yapı çekirdek, sirkülasyon ve mekanik destekleyici geri hizmetler sağır cepheye yerleştirilmiştir. Zemin katın boşaltılarak ihtiyaç programı dahilinde kamu kullanımına bırakılması ve olağan sosyal hayatın içerisinde kamu tavrının tahmini ve yapının her gün kullanımı ve herkesçe yer bulması hedeflenmiştir. Ayaklar üzerine kalkan zemin kat kullanım konforunu artırmak, 1. katta teraslar oluşturmak ve yüzeyi genişletmek için geniş saçaklar kullanılmıştır. Yapılaşılabilir kütle uhdesinde yapının ana yolla kurduğu münasebet ve cephenin pek çok bağlam yüklenerek karakter kazanması düşünülmüştür.

Kamunun kullanımına hizmet edecek farklı fonksiyonlara imkan verebilen Sosyal Etkinlik Terası oluşturulmuştur. Spor alanını, fitness salonunu destekler Sosyal Etkinlik Terası oluşumu yapının interaktif yönünü beslemektedir.

Kamusal hareketliliği zenginleştirme potansiyeli olarak ve sosyal hayatı destekler ikincil yoğunluklu düşey Sosyal Etkinlik Duvarı ilçe halkının adeta günlük gazetesi görevi görecektir.





















