Tasarım alanında aynı zamanda tam kapasiteli bir semt pazarı ve de kapalı otopark istenmektedir. Tasarım alanı irdelendiğinde yapılaşılacak yer mevcut bir park, konut blokları ve sirkülasyonu yoğun bir özel hastane ile çevrilidir. Parsel iki ayrı yol / kaldırım kotundan 2,5 metre kot farkına sahiptir. Bu kapsamı geniş ihtiyaç programı için bir fırsat sunmaktadır.

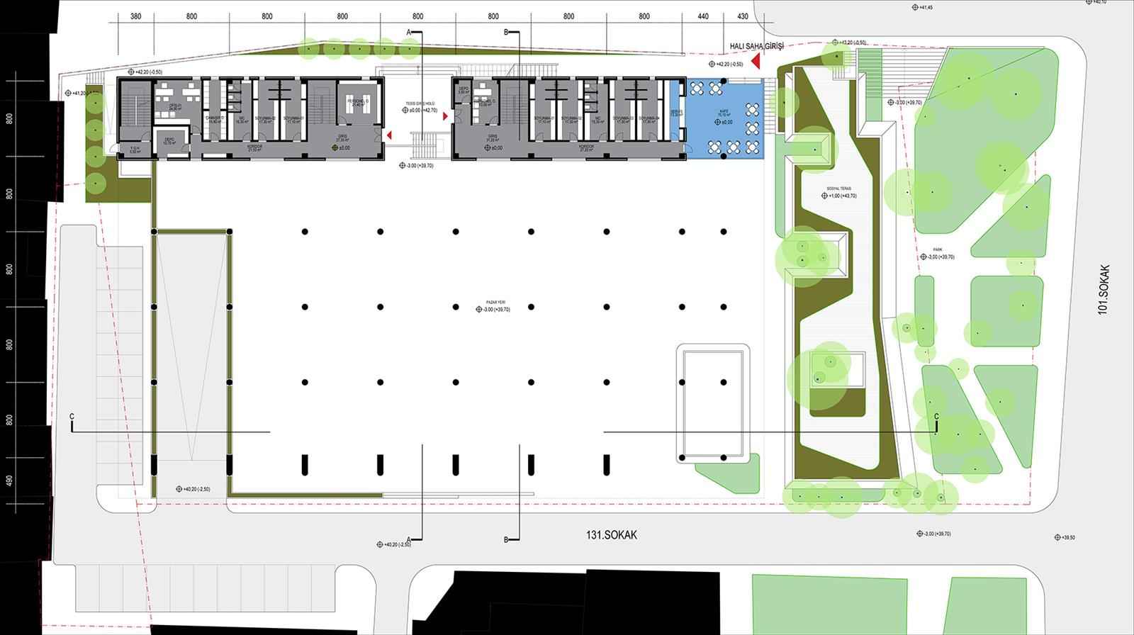
Arazi düşük yol seviyesine göre tesviye edilir. Çevre yapılaşmadan ve park tarafından çekilerek yerleşme alanı belirlenir. Ayaklar üstünde yükselen platform halı saha zeminini oluşturur. Pazaryeri düzlemi yol ile aynı seviyede oluşturulur. Halısaha tesisleri Avrasya Hastanesi’ne doğru yaslanır. Pazar yeri ile halı sahanın çalıştığı aralıklar birbirinden ayrılır. Zemin altında 3 katlı kapalı otopark tesis edilir

Otoparkın girişi 131. sokak üzerinden parselin güneybatı köşesinden verilir. Açık otopark yerleri düzenlenir. Pazaryeri kotunda parselin kuzeyine yaslanan birimlere ticaret fonksiyonu verilir. Cadde ve park ile ilişkili ticaret dizi oluşturulur. Ticaretler mevcut korunan ağaçlara göre şekil alırlar.

Ağaçların arasına sızarak yerleşen ticari birimler aynı zamanda pazaryerinin park tarafından erişilmesine olanak sağlar ve daha geçirgen bir durum elde edilir.




















