*ULUSAL MİMARİ PROJE YARIŞMASI SATINALMA ÖDÜLÜ
Bu konumlanma sayesinde yapı önünde oluşan kent meydanı ve avlu ile, mevcut şehir merkezine yakın olan ve çevresinde sık konut yerleşimleri bulunan bu bölgede kente, bekleme, toplanma, buluşma gibi kamusal alanlar sunarak, belediye ve çevresinin yeni bir odak noktası olması hedeflenmiştir. Böylece belediye binasının eski ve yeni kent merkezi arasında geçiş noktası olması istenmiştir. Bununla birlikte yalın mimarisi ile kent yaşantısına estetik bir değer katarken, bünyesindeki ve çevresindeki sosyal alanlarla kentli ile günün her saatinde yaşayan bir belediye binası olması hedeflenmiştir.

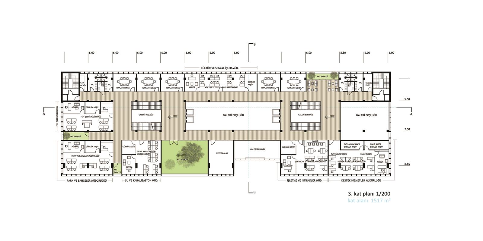
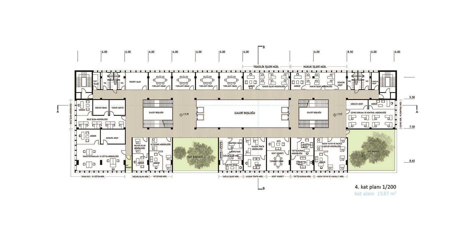
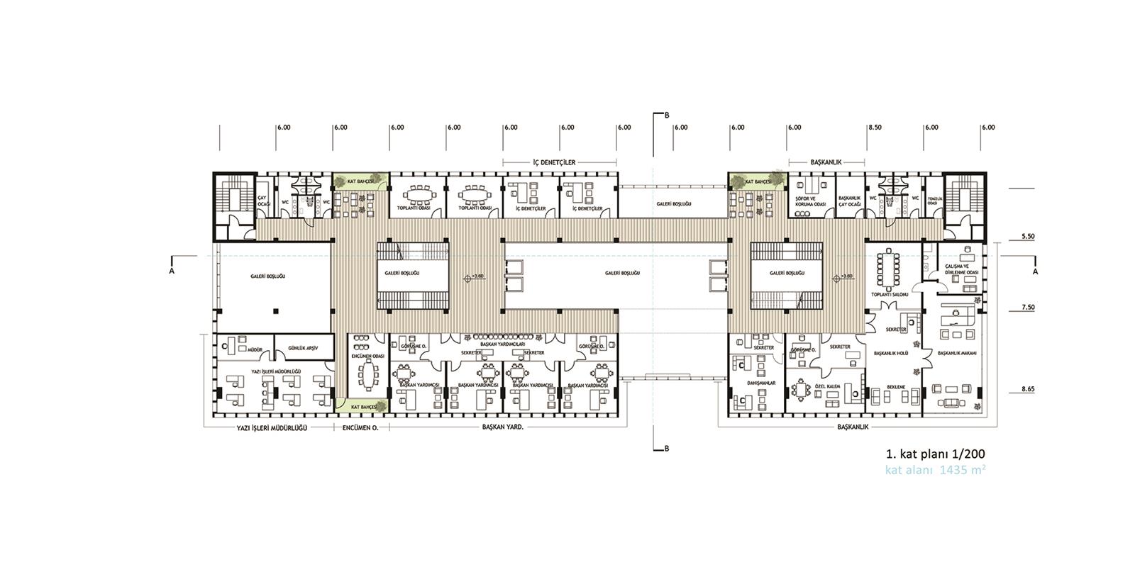
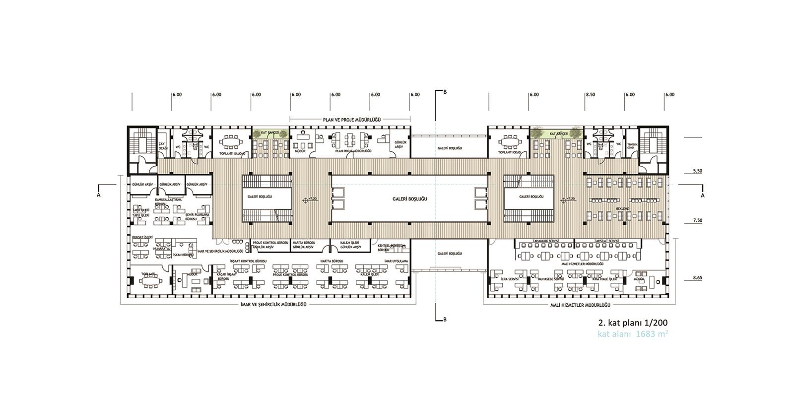
Belediye kütlesi oluşturulurken kullanıcıların doğal ışıktan maksimum faydalanmaları tasarıma yön veren ana unsur oldu. Bina içinde rahat bir sirkülasyon sağlayan atriyumun üstünden alınan doğal ışıkla aydınlık bir iç mekan oluşturuldu. Kütlede yer yer yapılan boşaltmalarla iç mekanın doğal aydınlatması daha da zenginleştirildi. Bu boşaltmalar sonucu ortaya çıkan kat bahçelerinin ve seyir teraslarının kent parkına açılan zengin bakı noktaları vermesi amaçlandı.

Mekan kurgusu temel olarak atriyumun etrafına sıralanmış net ve yalın birimlerden oluşturuldu. Yatay sirkülasyon atriyum etrafındaki rahat koridorlarla sağlanırken, düşey sirkülasyon belediyenin iki noktasındaki merdiven ve asansörlerle sağlandı. Her katta yapılan kat bahçeleri ile çalışanların ve ziyaretçilerin nefes alacakları mekanlar oluşturuldu

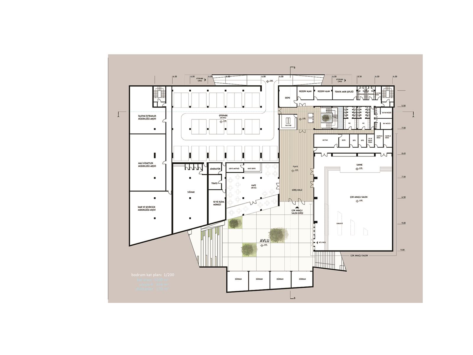
Belediye binasının bodrum katında oluşturulan ve kent meydanının avlusuna açılan kafe, çok amaçlı salon, fuaye ve dükkanlar ile yapının kentli ile kurduğu ilişki daha da güçlendirilmiştir. Belediye binasının cepheleri, tarihi uşak evinin pencere boşluk oranlarının yorumlanması ile elde edilen ızgara sisteminden oluşturuldu. Bu prekast ızgara bölgenin önceki sanayi işlevine vurgu yapan corten malzemesi ile birlikte bir kompozisyon oluşturdu ve prekast elemanlardaki derinlik ile gün ışığının kontrollü bir şekilde içeriye alınması sağlandı.

















