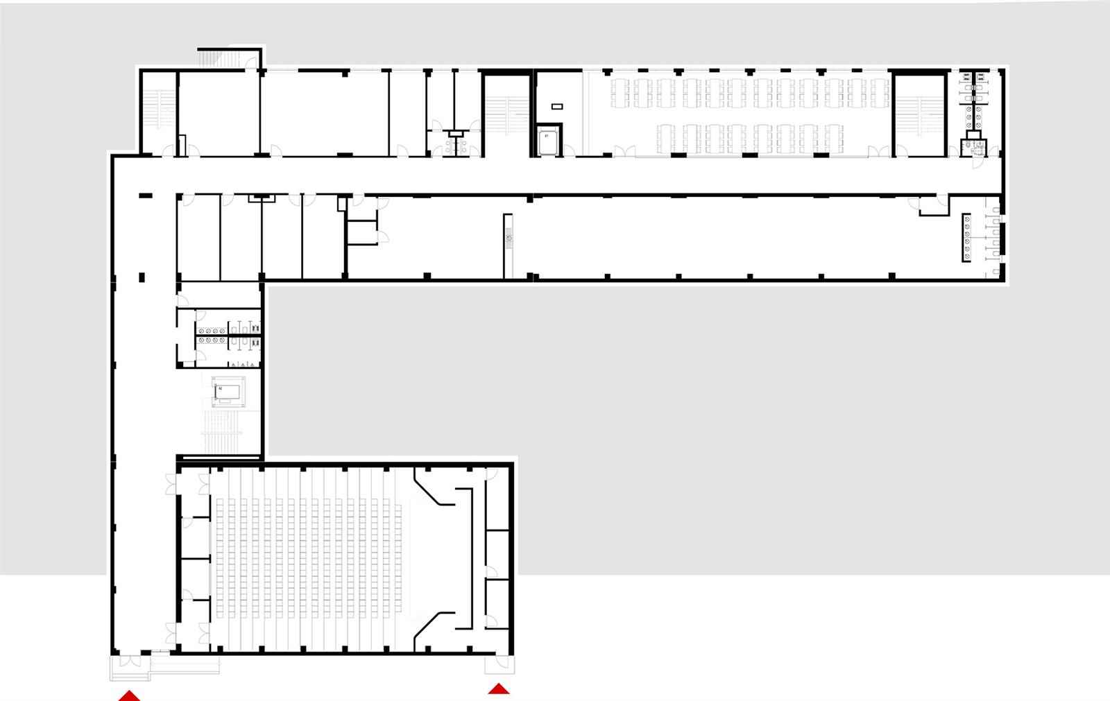
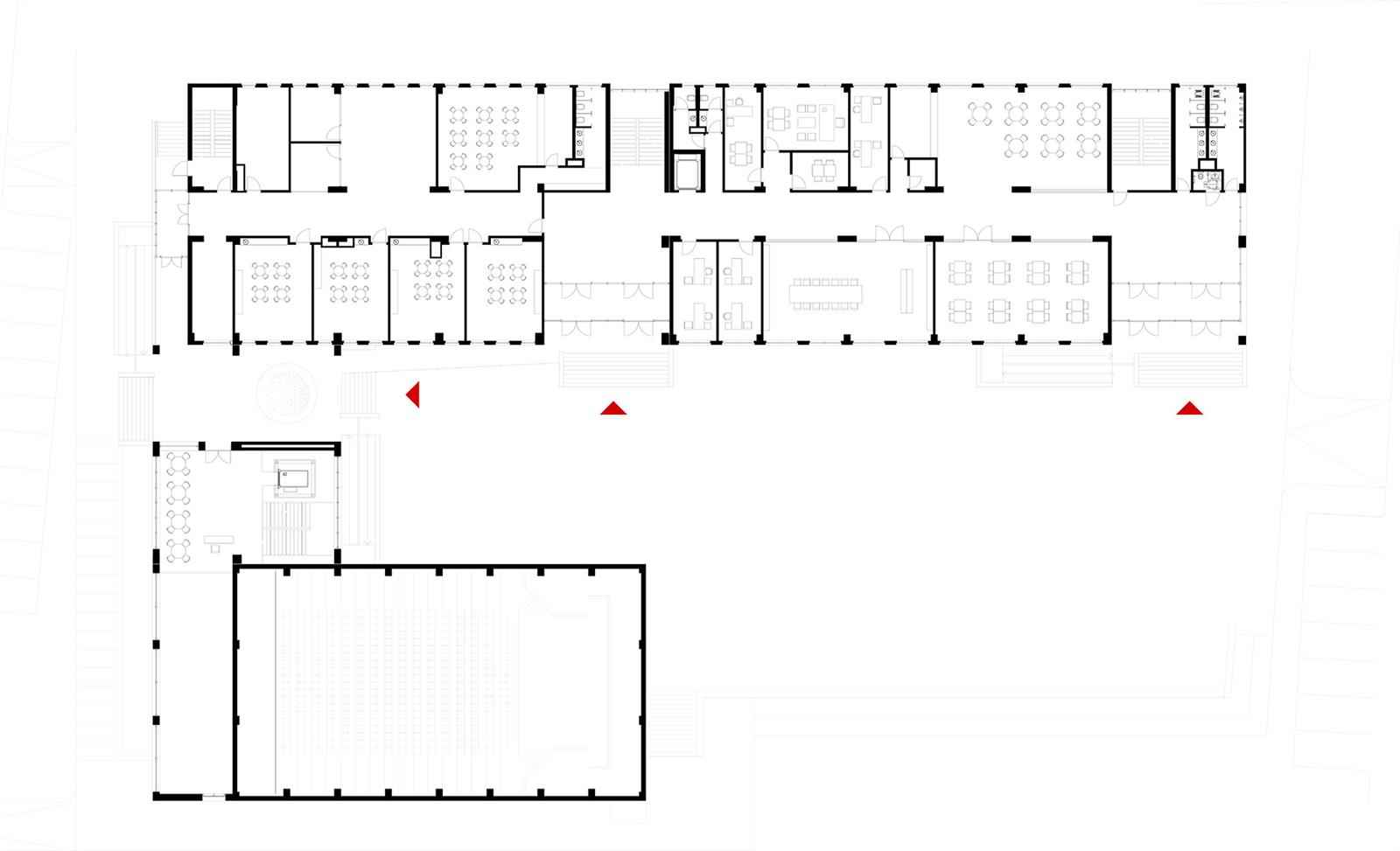
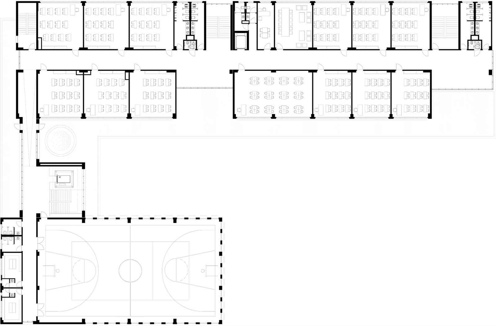
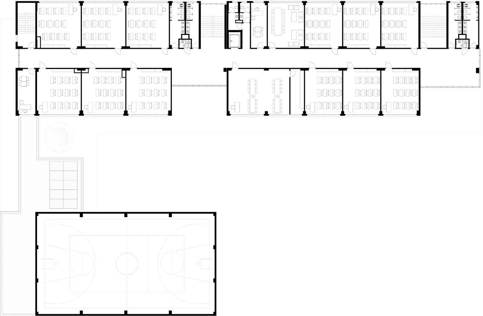
İhtiyaç programı dahilinde bulunan eğitim, spor, sosyal çoklu etkinlik gibi fonksiyonlar aynı avlu etrafında toplanmışlardır. Yapı üst ölçek vaziyet bölgeleme kararları verilirken farklı yaş gruplarındaki kullanıcı profilleri irdelenmiş ve hem eğitimciler hem de öğrenciler için optimum tasarım kararları belirlenmiştir. İki farklı ana eğitim yaş grubu için farklı iki giriş düşünülmüş ve kullanıcı teması zayıflatılmıştır. Vaziyet plan kararlarında beyaz yaka ve mavi yaka görevli erişilebilirlikleri, öğrenci oyun alanları, avlulu içe dönük mekan kurgusu tercih edilmiştir.

Projelendirme aşamasında kararlar verilirken ihtiyaç programı bağlamında optimum eğitim; yatırım / işletme pratikleri düşünülmüştür. Yapı malzeme tercihleri de yine aynı kaygılarla değerlendirilmiş ve ekonomi / sosyoloji girdileri tasarım sırasında ortak referanslar olarak düşünülmüştür. Ekonomik, erişimi ve imalatı kolay doğal ve sıcak yapı malzemeleri tercih edilmiştir. Açık / kapalı / yarı açık mekanlar üretilmiş ve kullanıcıların mekan konforları öncelenmiştir.









