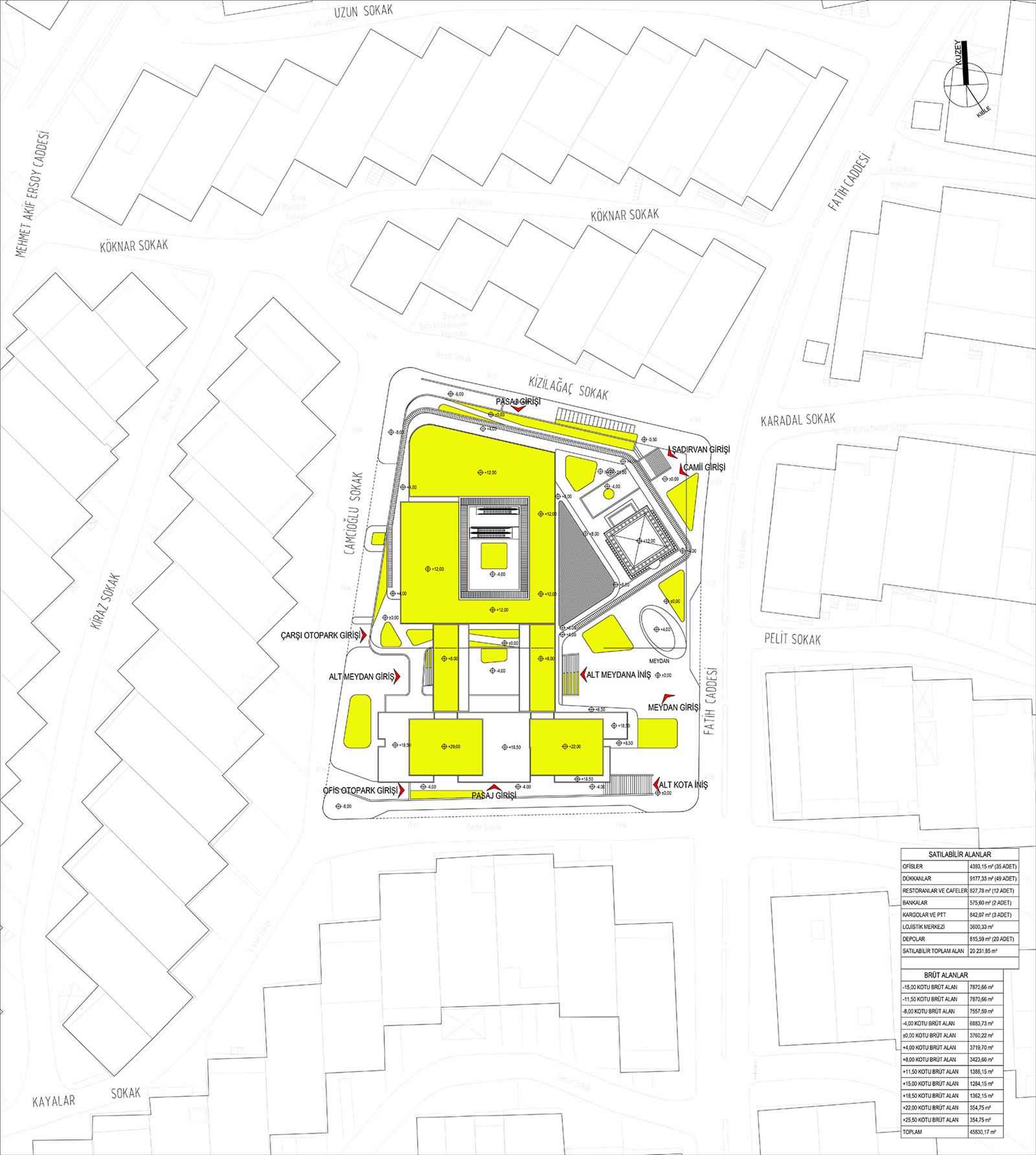
İstanbul’un bu değerli ticaret merkezindeki alan için ticaret, ofis, lojistik merkez, cami, kamusal alanlar gibi fonksiyonları içeren karma kullanımlı bir yapı istenmektedir. İstenilen fonksiyonlar ve alanın büyüklüğü göz önüne alındığında burada ortaya çıkacak olan yapılaşmanın yüksek yoğunluklu bir sistem olacağı aşikardır. Projede üzerinde durulan birinci mesele yoğunluk meselesidir. İkinci olarak bu karma sistemin birincil aktörü ticaret fonksiyonudur. Bu ticari fonksiyonların kurgusu proje kapsamında oluşturulacak olan kamusal kullanımları da örgütler nitelikte olacaktır. İstanbul gibi çok güçlü kent içi açık alan kurguları olan, çarşı kültürü çok köklü bir şehirde, benzer bir durumun burada tasarlanacak olan çarşıda oluşturulabilmesi diğer bir tasarım meselesi olarak ele alınmıştır.

Proje tasarım ilkesi olarak alandaki yapı yoğunluğunu kabul edilebilir bir seviyede tutarak, kapalı bir sistem yerine açık, geçirgen, parçalı, iç dış tanımının belirsizleştiği, kamusal kullanımı güçlü olan bir sistem hedeflenmiştir.

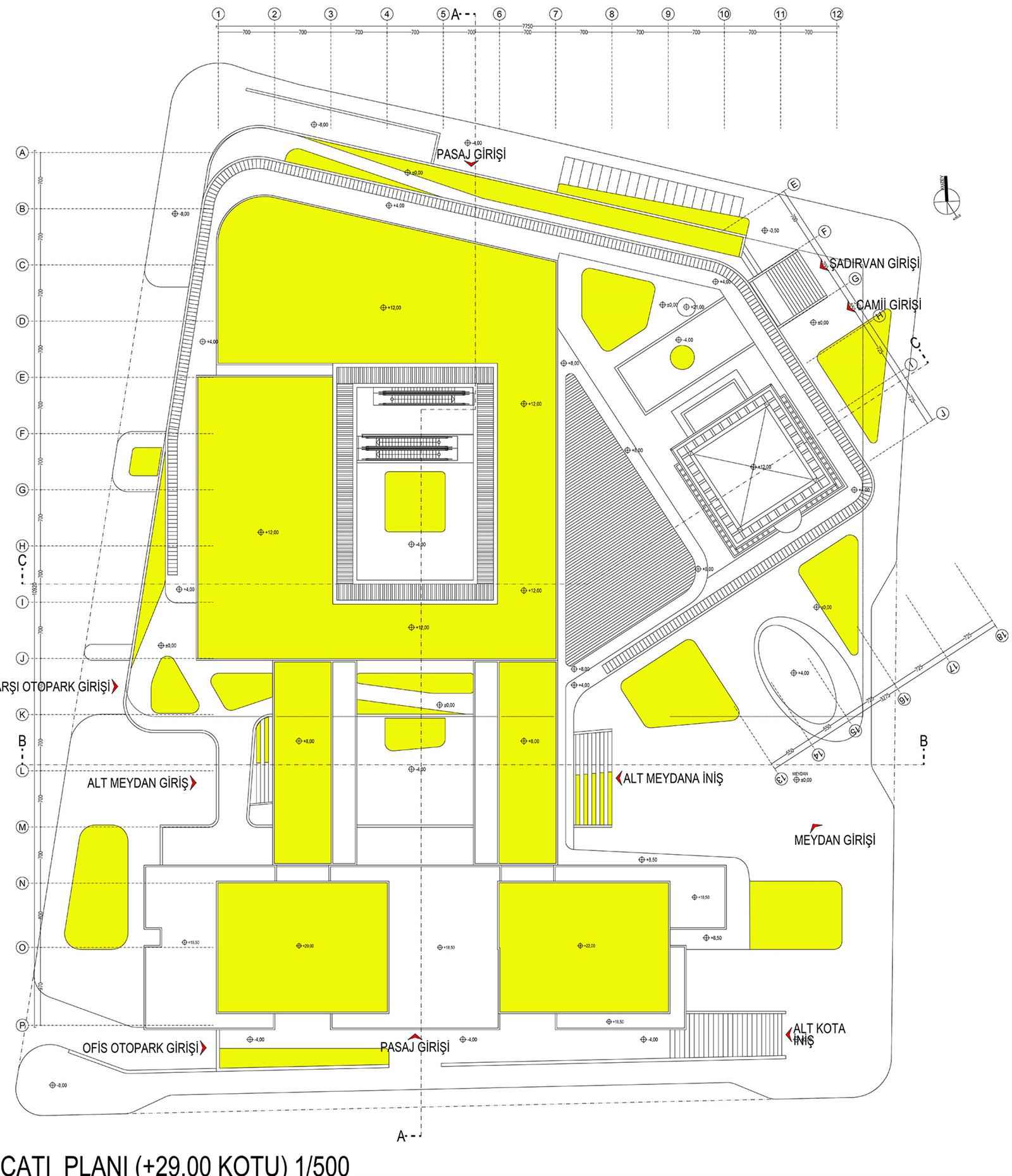
Tasarım karaları, proje şartnamesinde vurgulanan ticari getiri ve bölgedeki donatı alanı yetersizliğine cevap verebilecek ‘kentsel / kamusal açık alan ihtiyacı’ ifadelerinin yarattığı tezat durum üzerinden ele alınarak şekillenmiştir. Arazideki eğimden azami düzeyde faydalanılarak ticaret yüzeyleri artırılırken, oluşturulan meydan, sosyal aks, alt meydan, avlu ve teraslarla kamusal alan kullanımının sürekliliği sağlanarak proje geneline yayılması istenmiş ve çarşının kendisinin tümüyle kamusal bir kullanım sunması amaçlanmıştır.

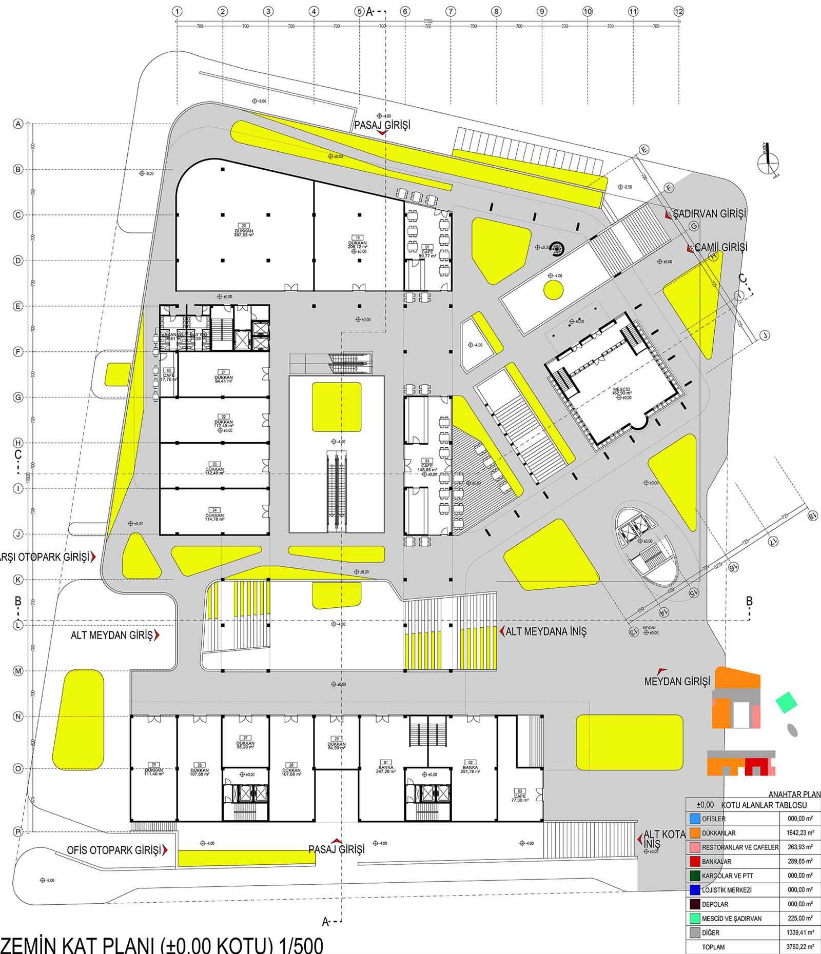
Fatih Caddesi proje alanının kentle ilişki kurduğu en güçlü aks konumundadır. Bu durum dikkate alınarak yapılaşma caddeden uzaklaşılarak tesis edilmiş ve kentsel açık alan (meydan) kurgusu çarşı-cadde arakesitinde oluşturulmuştur. Program içerisinde özel bir yeri olan cami bu kentsel alanı tarifleyecek şekilde kentsel açık alan ile ilişkili olarak konumlandırılmıştır. Cami geçirgen bir saçak ile çevrelenerek, cami avlusu ve meydan tanımlı hale getirilmiştir. Caminin kıble istikametindeki yönelimi avantaja dönüştürülerek, Fatih caddesindeki üzerindeki, hem kuzey hem güney yönünden alana gelen yaya hareketini yönlendirici bir görev üstlenmiştir. Caminin iki yanındaki cadde ve meydana açılan merdivenler ile yaya sirkülasyonu çarşı alt avlusuyla buluşturulmuştur. Meydanın kamusal kullanımı caminin yanı sıra çarşının meydana bakan yüzlerinde oluşturulan kafeler ve meydana doğru uzanan kentsel saçak ögesi ile desteklenmiştir.

Fatih Caddesi ile Camcıoğlu Sokak arasındaki yaklaşık 8 metrelik kot farkına yerleşen bir podyum oluşturulmuş, çarşı ve ofis kütleleri bu podyum üzerinde yükselmiştir. Podyumda meydanın uzantısı olacak şekilde bir yarık oluşturulmuş, oturma birimleri ve peyzaj ile kamusal alana dönüşen bir “sosyal aks” oluşturulmuştur. Bu aks sayesinde 0.00 kotundaki meydan ile -4.00 kotundaki çarşı avlusu ve -8.00 kotundaki Camcıoğlu sokağın yaya bağlantısı sağlanmıştır. Oluşturulan bu sosyal aks ile birlikte ortaya çıkan arayüzlerdeki mekanlar ticari fonksiyon verilerek değerlendirilmiştir.
Çarşı dükkanları podyum sınırlarından geri çekilerek yerleşerek kamusal kullanıma hizmet etmek üzere, oturma, dinlenme, çay-kahve içme terasları meydana getirmiştir. Bu teraslar kısmı olarak saçakla örtülerek açık ve yarı açık mekanların oluşması sağlanmış ve bu alanlara hizmet edecek gerekli ticari birim düzenlemeleri yapılmıştır.

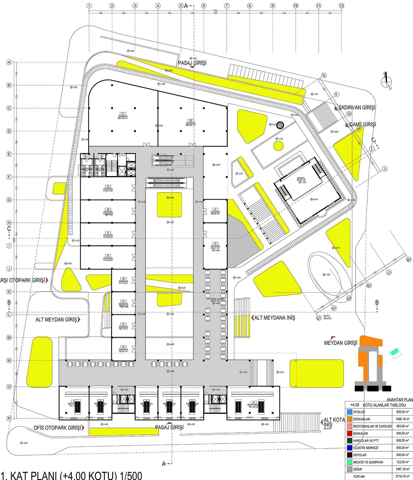
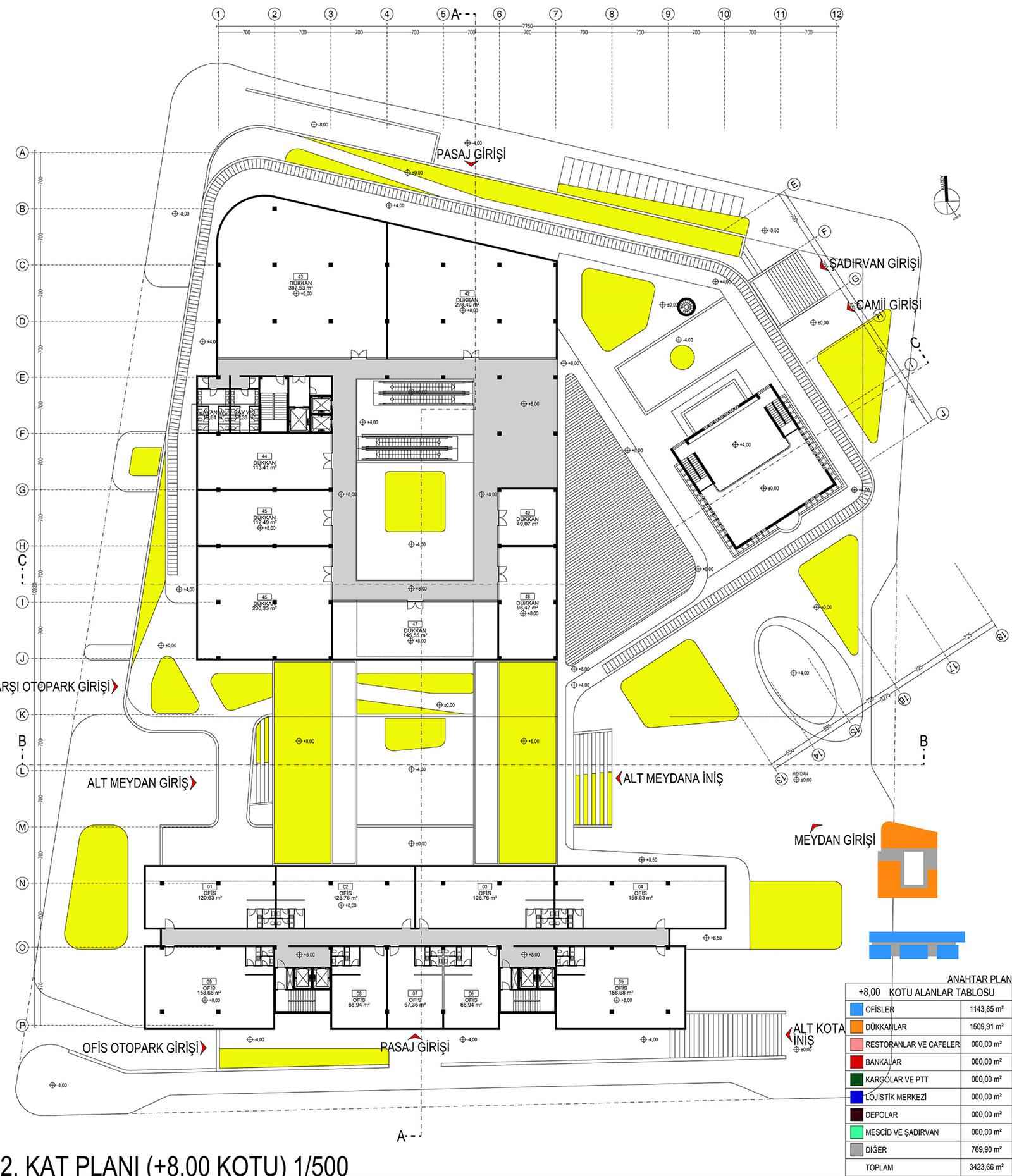
Çarşı ve ofis bloğu sosyal aksın iki yakasında karşılıklı olarak konumlandırılmıştır. Çarşı kütlesi avlulu olarak, meydan, cami ve sosyal aks ile ilişkili olarak kurgulanmıştır. Çarşı dükkanları ofis kütlesinin altında da (-4.00, 0.00 ve +4.00 kotları) sürdürülerek, yaya erişimine müsait her yüzey ticari olarak değerlendirilmiştir. Yeme-içme birimleri ofis bloğunan altında, +4.00 kotunda, meydandan yaya olarak erişilebilen ve yarı açık oturma alanına sahip “food court” formatında tasarlanmıştır. Dükkan ve teraslı iki köprüyle çarşı ile bağlantısı kurulmuştur. Ayrıca yeme-içme alanına ofis katlarından da doğrudan erişim sağlanmıştır.

Arazi -4.00 kotunda ofis bloğu altında Sedir Sokak’tan erişilen bir pasaj oluşturulmuştur. Bu pasaj sosyal akstaki alt meydan ve çarşı avlusuna açılarak bir başka pasajla da Kızılağaç Sokak’a bağlanmaktadır. Böylece -4.00 kotunda çarşısının içerisinden Sedir Sokak ile Kızılağaç Sokak yaya bağlantısı kurulmuştur.

Ofislerin yaya girişi Sedir Sokak’tan -4.00 kotundaki bu pasajdan verilmiştir. İki adet banka şubesi de ofis yaya girişi ve meydan ile ilişkili olarak Sedir Sokak tarafında tesis edilmiştir.
Ofis bloğu kentin fiziki çehresi ve yakın çevredeki mevcut yapılaşma gabarisi dikkate alınarak düşeyde yükselerek değil, yatay bir kütle olarak tasarlanmıştır. Farklı mekansal gereksinimlere cevap verebilecek, gerektiğinde birleşip bölünebilecek esnek bir plan kurgusu tercih edilmiş ve farklı büyüklüklerde ofis birimleri oluşturulmuştur.

Lojistik Merkez -8.00 kotundaki Camcıoğlu Sokak üzerinde tesis edilmiştir. Operasyonel kolaylık açısından yol ile hem zemin olarak kurgulanmıştır. Lojistik merkezin içerisinde işletme senaryosu açısından gerekli olduğu düşünülen ofis birimleri için de yer ayrılmıştır. Kargo firmaları ve PTT de lojistik merkezle ilişkili olarak bu sokak üzerinde planlanmıştır.

Cami, her ne kadar ihtiyaç programında 200-250 kişilik olarak belirtilmiş olsa da mevcuttaki caminin daha büyük bir cami olarak görünmesi ve yakın çevredeki tek cami pozisyonunda olması göz önünde bulundurularak belirtilen kapasitenin özellikle cuma namazları için yetersiz olacağı düşünülmüştür. Bu yüzden meydan kotundan(0.00) girişli olarak, +4.00 kotunda mahfiili bir biçimde 270 kişi kapasiteli olarak tasarlanan camiye -4.00 kotunda da 350 kişilik bir ibadet alanı eklenerek cuma namazlarında oluşacak yoğunluğa kapalı alanlarında hizmet verebilir bir kapasite sağlanmıştır. Şadırvan ve tuvaletler gibi cami destek birimleri de cami alt avlusuyla (-4.00 kotu) ilişkili olarak tasarlanmıştır. Bu birimlerin meydandan kolaylıkla erişilebilir olması sağlanarak kamusal ihtiyaca da cevap verebilmesi amaçlanmıştır.

Kapalı otopark girişleri, ofis ve çarşı için ayrı ayrı olmak üzere Camcıoğlu sokak üzerinde bulunmaktadır. Kapalı otopark -11.50 ve -15.00 kotlarında 2 kat olarak, ofis ve çarşı otoparkları için toplamda 270 araç kapasiteli olarak planlanmıştır. Ayrıca teknik mekanlar ve mağaza depoları da bu katlarda oluşturulmuştur. Otopark katlarından ofislere, çarşıya ve meydana erişen çekirdekler tesis edilmiştir.













