Kamu yararına programlanmış sosyal yapılarda mimari tasarım kararları alınırken tasarımcıyı bağlayan çok fazla etken ortaya çıkar. ihtiyaç programı hem konaklama hem eğitim hem de sosyal etkinlik gibi geniş yelpazede bir beklenti ile ortaya çıkar. Bu üç ana unsurun farkı kurgulanan eylemleri farklı kütlelerde ve kullanıcılara farklı hizmet edecek şekilde düşünülmüştür. Kamu yatırım ve işletme kolaylığı kadar bulunduğu şehre değer katacak sosyal etkinlik konforunu artıracak imgesel gücü de düşünülmüştür.

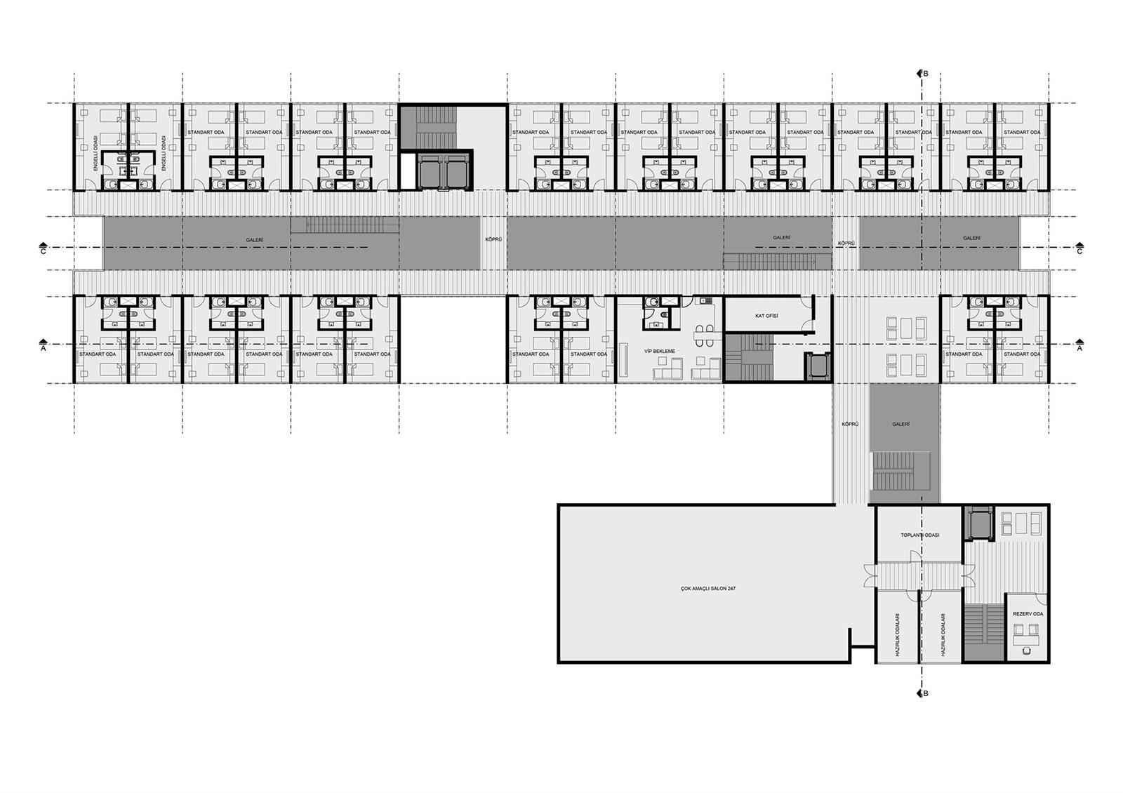
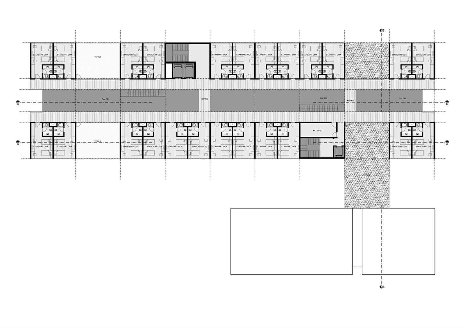
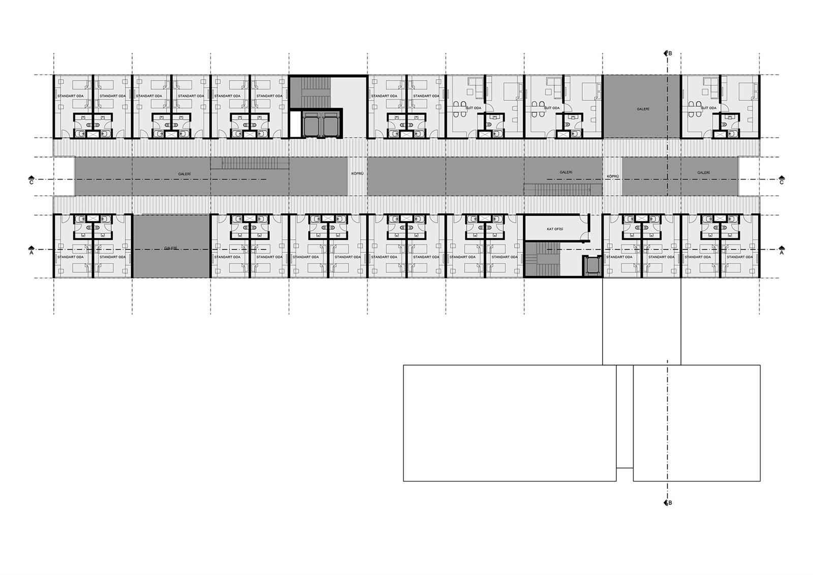
Tasarım kullanıcıları tasnifler ve bu tasnif doğrultusunda yapıları konumlandırır. Yapı plastiği, farklı ölçeklerdeki dikdörtgenler prizmalarından yine farklı ölçeklerdeki dikdörtgen parçalarının koparılışı ile elde edilmiştir. Bu etki yapı malzemelerinin de değişmesi ile daha güçlü hale getirilmiştir. Burada cephe dolu boş dengesi, bu denge içerisindeki oranlar ana tasarım unsurlarıdır. Konakla yapılarının zayıf yönü olan bu ritim farklı ebatlarda oluşan cephe boşlukları ile kırılmıştır. Bu cephede oluşan boşluklar yeşil ortak kullanımlı açık bahçelere çevrilmiştir.

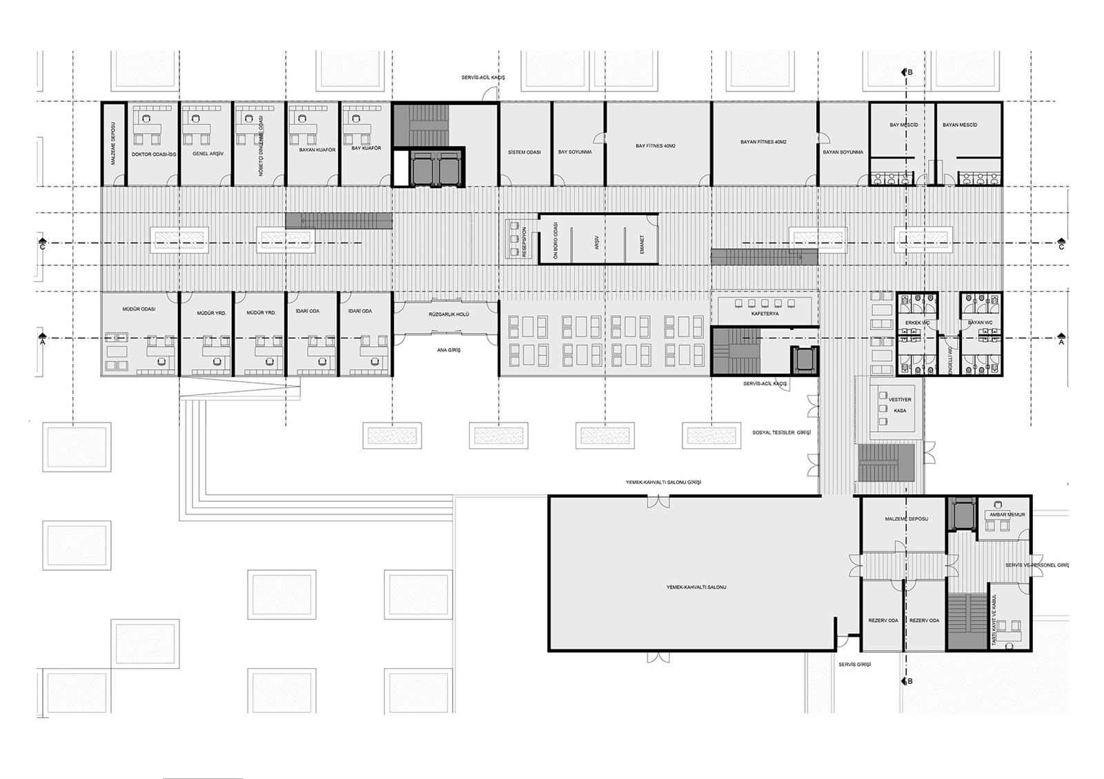
Yapıya yarı açık korunaklı bir avludan girilir. Bu avlu sizi farklı ihtiyaç programları doğrultusunda farklı kullanıcılar olarak sisteme dahil eder. Konaklama, yönetim birimleri ve ortak sosyal kullanım üniteleri tekil bir kütlede toplanmıştır. Bu kütlede giriş sizi ortasında atrium olan bir galeri ile karşılar. Tasarımda bu loft galeriyi genişçe bir yatay sirkülasyon aksı sarar. Bu aks içeride avluyu kuşattığı gibi dış çeperde de farklı konaklama ünitelerine konforlu doğal ışık ve doğal havalandırma eşliğinde erişim sağlar. Bu aks dış cephedeki ritmi bozan yeşil balkonlara direkt erişebilme fırsatı da sunar.

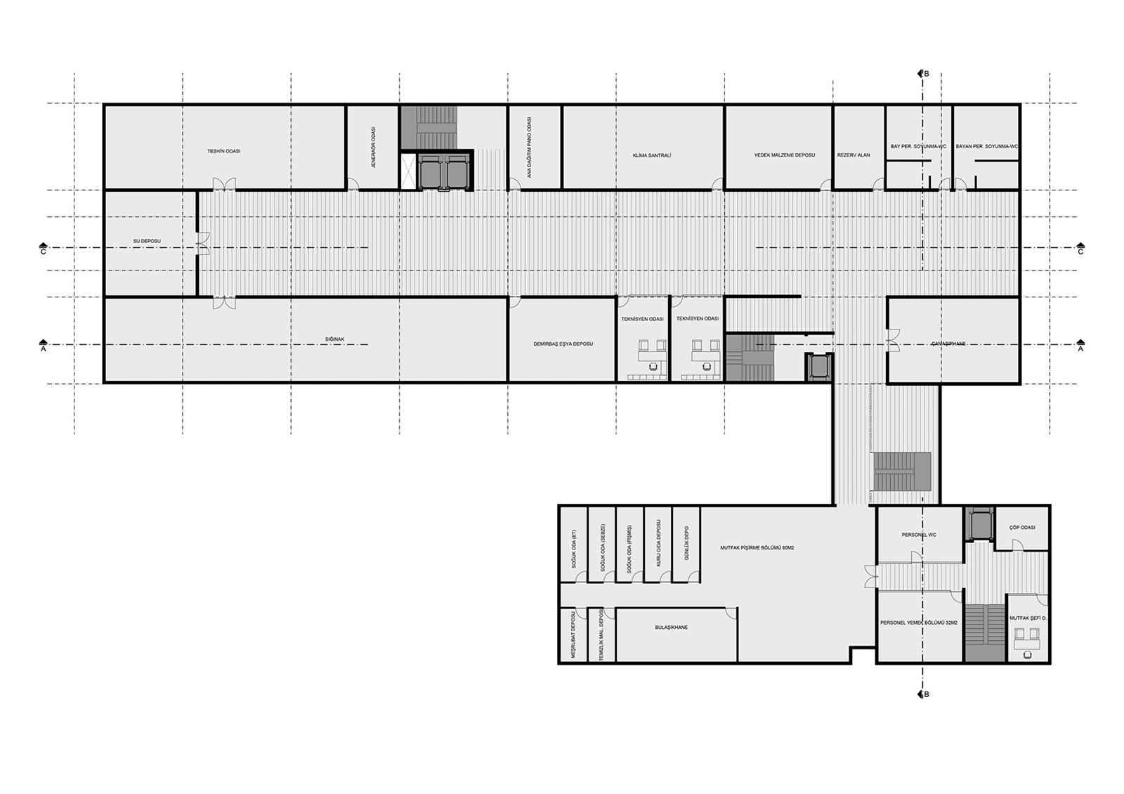
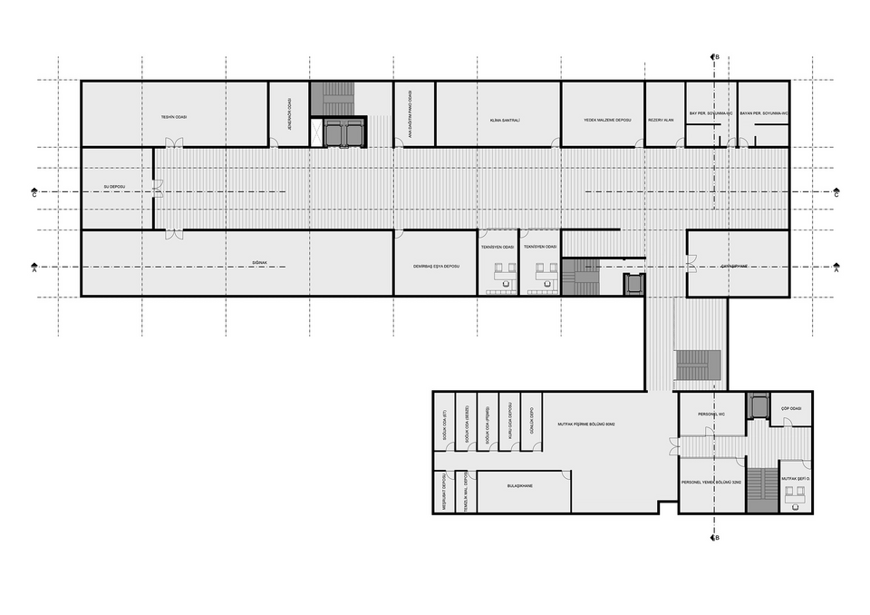
Yapı kütlesinin zemin katında yönetim ve sosyal birimler mevcuttur. Bodrum katta ikincil fonksiyondaki destke, servis ve de teknik mekanlar kurgulanmıştır. Kamuya hizmet edecek ve farklı kullanıcı profine sahip olacak çoklu etkinlik salonu fonksiyon olarak tamamen konaklama biriminden kopartılmıştır. Yarı açık avludan bu çok amaçlı salona ve yemek kahvaltı mekanlarına erişilir. Bu kütleler yatay sirkülasyonu zengin bir köprü ile birbirine bağlanmıştır. Zemin katta açık / yarı açık mekanlar kurgulanmış, kent mobilyaları ve peyzaj tasarımları ile kullanıcı sosyal hayatının zenginleştirilmesi hedeflenmiştir.








