‘Dini’ bir mekan olan cami Müslümanların bir araya geldikleri, meselelerini konuşup tartıştıkları, onlara çözüm aradıkları ‘toplumsal/sosyal’ mekanlardır. İslam’da cami sosyal yaşantının içerisinde güçlü bir şekilde bulunmakta, sınıf farkı gözetmeksizin her kesimden insanın bir araya geldiği merkezleri oluşturmaktadır.
Cami mimarisi dünyanın farklı coğrafyalarında olduğu gibi ülkemizde de geçmişten bugüne iklime, kültürel yapıya, yerel özelliklere ve mevcut yapı kültürüne göre sürekli değişim göstermiştir. Ülkemizde günümüz cami mimarisi ağırlıklı olarak 16.yy klasik Osmanlı mimarisinin kötü taklitleri şeklinde ortaya çıkmıştır. Coğrafya, iklim, yerel özellikler gibi farklılıklar dikkate alınmadan tasarlanmış örnekler ülkenin her yerinde karşımıza çıkmaktadır. Çağın mimari ve teknolojik ilerlemelerine uygun olarak tasarlanmış uygulamaların sayısı oldukça azdır.
Cami meselesine bu genel bakış neticesinde yapılacak olan cami tasarımı üç temel prensip doğrultusunda şekillenmiştir;
- Caminin “toplumsal mekan” olma niteliğini güçlendirerek, mahalle/şehir yaşamına etkin bir şekilde katılabilmesi.
- Yapılacak caminin tipoloji vermemesi, bulunduğu coğrafyaya, iklime, kendi koşullarına uygun, yerine ait bir yapı olabilmesi
- Gelenekle beraber şekillenmiş cami mimarisinin temel prensiplerini içeren, yapıldığı zamana ait özgün bir yapı olabilmesi.

Cami tasarımının yukarıda belirtildiği üzere; “şehir yaşamına katılan”, “yerine ve zamanına ait olan” bir biçimde gerçekleşebilmesi için yapının yapılacağı alanı iyi okumak gerekmektedir. Bu doğrultuda yarışma yeri olarak verilen imar planı üzerinden bir takım çıkarımlar yapılmıştır.
Mahalle Kurgusu
Proje alanının içerisinde bulunduğu imar planı (Şekil-1) yeni tasarlanmakta olan bir şehrin ipuçlarını verir.
İmar planındaki organik yol örgüsü, çıkmaz sokaklar geleneksel şehir dokusunun karakterini yansıtmaktadır. Verilen imar lekesi üzerinde bir mahalle kurgusunun katmanları dikkat çekmektedir.

Mahalle rekreasyon alanı olarak tanımlanan yeşil bant ile mahalleleri birbirine bağlayan geniş otoyol arasındaki alanda planlanmıştır. Cami alanı çevresindeki ticaret, eğitim, sağlık ve kültür alanları ile birlikte mahallenin odağını tanımlar.
Böyle bir odak noktasında yapılacak olan cami, mahalle sakinlerinin yanı sıra çarşıdaki ve kamu yapılarındaki kullanıcılara da ev sahipliği yapacaktır. Bu özellikleriyle burada yapılacak olan caminin “merkez camisi” olacağı söylenebilir. Dolayısıyla caminin cuma namazlarında yoğun bir şekilde kullanılacağı öngörülüp, proje kapsamında genişleme senaryosu düşünülmüştür.
Mesafeler
Cami alanlarının (Şekil-2) birbirine 250 m ile 450 m arasındaki mesafelerde yerleştirildiği görülür. Cami alanlarını merkeze alarak 200 m yarıçapında çizilen çemberler tüm bir mahalleyi kapsamaktadır. Bu haliyle camilerin yaya olarak ya da bisikletle erişilebilir mesafelerde konumlandırıldığı söylenilebilir.
Buradan hareketle camiye erişimin ağırlıklı yaya olarak gerçekleşeceği öngörülmüş ve ihtiyaç programında belirtilen açık otopark gereksinimini yol kenarında konumlandırılacak bir park cebinin karşılayacağı varsayılmıştır.
Plan Dokusu
İmar planını yavaşlatılmış yollar şeklinde kurgulanmış organik yol örüntüsü (Şekil-3) şekillendirir. Yol örüntüsü mahallenin sınırlarında çıkmaz sokaklar şeklinde sonlanır. Yer yer yollara takılmış açık otopark öbekleri göze çarpar. Bu karakterin tasarlanan şehrin yaya dolaşımını ve insanı önceleyen bir niteliği olduğu düşünülmüştür. Yer senaryosu geliştirilirken “doku” bu karakter çerçevesinde şekillendirilecek, cami bu doku bütünündeki yerini alacaktır.

2.YER SENARYOSU: MARDİN
Her yapı türünde olduğu gibi cami mimarisi de farklı coğrafyalarda kültürel yapı, iklim, yerel özellikler ve mevcut yapı kültürü gibi kriterlerden ötürü farklılık göstermiştir. Bu bağlamda tasarlanacak olan caminin yerine ait özgün bir karakter sunabilmesi için bulunduğu çevrenin belirgin bir şekilde tanımlanması gerekmektedir. Proje yeri olarak Güneydoğu Anadolu Bölgesi’nden Mardin şehri seçilmiş, tasarım Mardin şehrinin özelliklerine göre şekillenmiştir.
DOKU
Mardin’in kültürel, yerel, iklimsel özellikleri ve topografyasına göre ortaya çıkan geleneksel avlulu-teraslı yapı biçiminin oluşturduğu organik yol örgüsü, dar ve gölgelikli sokaklar şehrin dokusunu ortaya çıkarır.
Verilen imar planındaki konut ve donatı alanları üzerinde yukarıda bahsedilen Mardin şehir dokusu karakteristiklerinin bugünün ihtiyaçları ve yapı kurma alışkanlıkları ile beraber ele alnarak, az katlı, avlulu bir mahalle önerisi geliştirilmiştir. Böylelikle cami tasarımının şekilleneceği alanın kentsel bağlamı kurgulanmıştır. Tasarım bu “öneri yapılı çevre” (Şekil-4) bağlamında şekillenmiştir.

3. PROJE ALANI:DÜĞÜM NOKTASI
Çevresindeki çarşı, kültür merkezi, yeşil alan ve konutlarla temas halinde olan cami alanı bir “düğüm noktası” (Şekil-5) oluşturur. Mahallenin odağındaki proje alanı mahallenin kamusal yaşantısına katkı sağlayabilecek bir pozisyondadır. Cami alanının bu potansiyelini ortaya çıkarmak için camiyi kentsel süreklilik içerisinde ele alıp çevresiyle olan etkileşim yüzeylerini artırmak hedeflenmiştir. Buradan hareketle cami alanına her noktadan erişilebilen, “çok girişli” bir senaryo öngörülmüştür.
Tasarım ve Yerleşim Kararları
Mardin şehri üzerinden geliştirilen “öneri yapılı çevre” bağlamında cami önerisi bölgenin karakterine uygun olarak avlulu, gölgelikli alanlar oluşturan bir kurgu dahilinde şekillendirilmiştir. Caminin mahalle hayatına katılan bir karakterde olabilmesi için bu avluya erişim katmanlı ve geçirgen olacak şekilde bir çok noktadan sağlanmıştır.
Cami avlusu ile arsa çeperinin arakesitindeki “cami sokağı” (Şekil-6) çarşı ile kültür merkezi arasında uzanan, günlük yaşama katılan, durulan, geçilen ve vakit geçirilen bir aks olarak kurgulanmıştır. Burada cami kullanıcısının yanı sıra mahallelinin de kullanabileceği, saçak ve ağaç gölgelerinde çay kahve içip sohbet edebilecekleri, çocuklar için oyun alanı içeren, cami avlusuna katılabilecekleri kentsel mekanlar oluşturulmuştur.

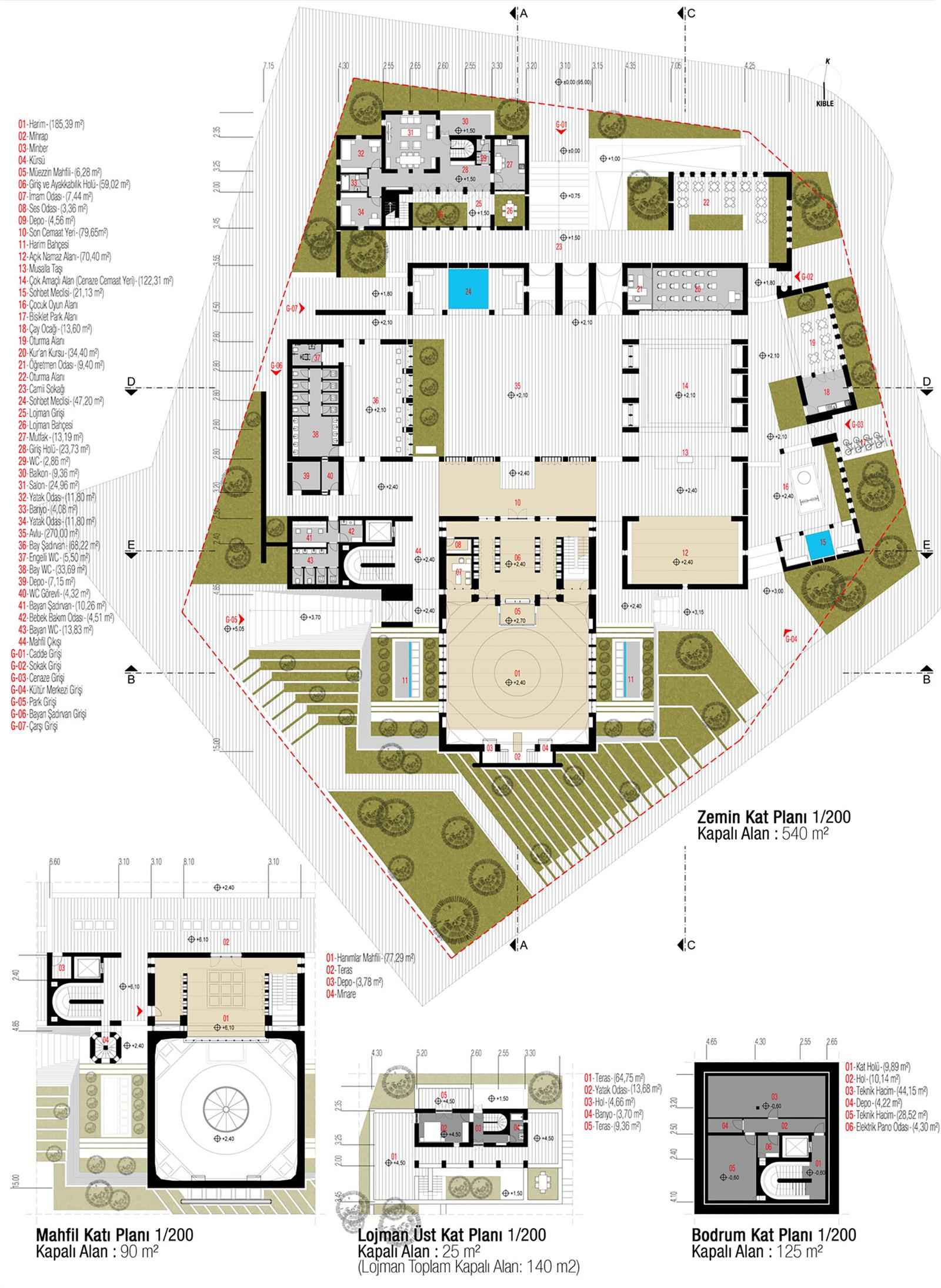
Arazideki eğim arsayı çevreleyen bütün yollardan konforlu bir biçimde erişimi sağlayacak şekilde düzenlenmiştir. En düşük noktası ile en yüksek noktası arasında 7 m kot farkı bulunan alanda avlunun konumlandırılacağı kot üzerinde hassasiyetle durulmuştur. Avlu ana girişi konut yerleşimlerinin ağırlıklı olduğu, dolayısıyla kullanıcının yoğun olarak bu noktadan erişim sağlayacağı kuzey yönündeki düşük yol seviyesinde oluşturulmuştur. Bu bağlamda avlu kotu, hem ana girişten hem de çarşı ve kültür merkezi akslarından kolay bir şekilde avluya erişilebilmesi için kademeli olarak yükseltilerek yol seviyesinden 2.40 m yukarıda konumlandırılmıştır. Çarşıdan ve doğu yönündeki yol tarafından düz ayak, düşük yol seviyesinden ise rampalı olmak üzere camiye engelli erişimi sağlanmıştır. Harim kütlesi arsanın en güneyine konumlandırılmış, mihrap duvarı arkasında kalan alan doğal eğiminde peyzaj ile birlikte düzenlenmiştir.
Plan okumasında bahsedilen burada yapılacak olan caminin “merkez camisi” niteliğinde olacağı çıkarımından hareketle verilen ihtiyaç programı yorumlanarak ele alınmıştır. Çarşı-kültür merkezi aksında oluşturulan oturma alanlarına çay kahve servisinin yapılabileceği bir çay ocağı önerilmiştir. Ayrıca cuma, bayram, teravih namazlarında cemaatin dışarıya doğru genişleyebileceği şekilde son cemaat mahalinin uzantısı şeklinde “açık namaz kılma alanı” ve “çok amaçlı saçak” önerilmiştir. Önerilen çok amaçlı saçağın altına gereken durumlarda cami cemaatinin taşabileceği gibi cenaze namazları kılınabilecek, Kur’an kursu öğrencileri için bir teneffüs ve oyun avlusu olabilecek, ramazan aylarında mahallelinin topluca iftar yapabileceği iftar sofraları kurulabilecektir.

Cami mekanı ile yan işlevler mimari olarak kaynaştırılarak bir bütün olacak şekilde avlu etrafında örgütlenmiştir. Çok amaçlı saçak, son cemaat revağı, erkek şadırvanı, havuzlu sohbet meclisi ile üç tonozlu giriş avlu alanını tanımlar. Erkek şadırvanı ile ilişkili olarak planlanan tuvaletler aynı zamanda çarşıdaki kullanıcıya da hizmet verebilecek şekilde konumlandırılmıştır. Çarşı aksından kadın tuvalet ve şadırvanları için de mahremiyet gereksinimi gözetilerek ayrıca bir giriş tesis edilmiştir. Hemen kadınlar şadırvanı ile ilişkili olarak kurgulanan merdiven ve asansör hanımlar mahfiline erişimi sağlamaktadır. Cami içerisinden de hanımlar mahfiline erişen ayrıca bir merdiven çözülmüştür. Bugün artık ortaya çıkıp geliştiği zamanlardaki ezanın duyurulması maksadıyla Cami mimarisinde yer tayin etme, cami kimliğini güçlü bir şekilde vurgulayan, sembolik nitelik kazanmış minare tasarımın genel karakterine uygun özgün bir şekilde tasarlanmıştır. Minare, park tarafından peyzaj ile birlikte tasarlanan merdivenin karşısında konumlanarak, altındaki tonozlu kapı ile son cemaat revağına açılır.

Cami tektonikleri yerel yapı formaları ile uyum gösterir bir şekilde taş kaplı düşey yüzeyler ile düz plak çatı örtülerinin eğime ve fonksiyona göre farklı kotlarda konumlanarak araziye yerleşir. 15×15 m kare taban üzerine kurulan harim kütlesi düşük yol seviyesinden ve toprağa gömülü olduğu yüksek kot tarafından da algılanabilir hale gelebilmesi için yükselerek 15x15x15 m ebatlarında bir küp biçimini alır. Böylece caminin çevresinden farklılaşması ve görünürlüğü sağlanırken iç mekanın ruhani etkisini güçlendiren ferah bir hacme dönüşmüştür.
Küp biçimindeki harim kütlesinin dört köşesinden açılan boşluklarla formun prizmatik etkisi hafifletilmiştir. Bu boşluklar düşeyde kare biçimli ızgara ahşap paneller ile kapatılarak güneş ışınlarının doğrudan etkisi azaltılmış, tepe ışıklıkları ile de iç mekanın aydınlık düzeyi artırılmıştır. Yine kütle üzerinde açılan düşey pencere boşlukları ile ışığın içeriye kontrollü bir şekilde alınması sağlanmıştır. Sekizgen biçimi doğuran aydınlıkların kare cidar ile buluştuğu yerde kırıklı üçgen yüzeylerle yalın bir mukarnas yorumu geliştirilmiş, cami duvarlarına sade bir şekilde işlenen sülüs hat yazıları ile iç mekanda sade bir tezyinat yapılmıştır.
Peyzaj
Projenin açık alanları, cami yapısının önemli bir parçasını oluşturan yatay düzlemler olarak ele alınmış, düşey düzlemlerdeki taş malzeme yatayda sürdürülmüş, yapı zemin ilişkisi kurulmuştur. Yapı ve duvarlarla tanımlanmış çim tarhları içerisine bölgenin florasına uygun bir biçimde gölge verecek ağaçlar tercih edilmiştir. Mihrap duvarının arkasındaki yeşil alan doğal eğimiyle peyzaj ile iç içe geçen basamaklarla düzenlenmiştir. Buradaki basamaklar farklı eğimler sürdürülerek avlu kotuna inen merdivenlere, merdivenler de harim bahçelerini tanımlayan eğik duvarlara dönüşür. Harim bahçeleri iç- dış mekan ilişkisini kurarak, namaz mekanını bitki örtüsüyle perdelerken göze hoş gelen bir görüntü sunar. Avlu etrafında ve çocuk oyun alanında tasarlanan gölgelikli sohbet meclisleri su havuzları ile serin bir oturma mekanı meydana getirirler.
Yapım Sistemi ve Malzeme
Yapı betonarme ve yığma yapım sistemlerinin karma kullanımı şeklinde tasarlanmıştır. Betonarme strüktür 15 ve 10 cm kalınlığında değişen Mardin bölgesinde kullanılan doğal taş malzemenin birleştirilmesiyle karma bir strüktür yapısı ortaya çıkmıştır. Bahçe duvarları yer yer tümüyle yığma olarak tasarlanmış, kütle bitişleri betonarme harpuştalarla sonlandırılmıştır. Yapı içerisinde ve dışarısında doğal ahşap doğramalar tercih edilmiştir.



















