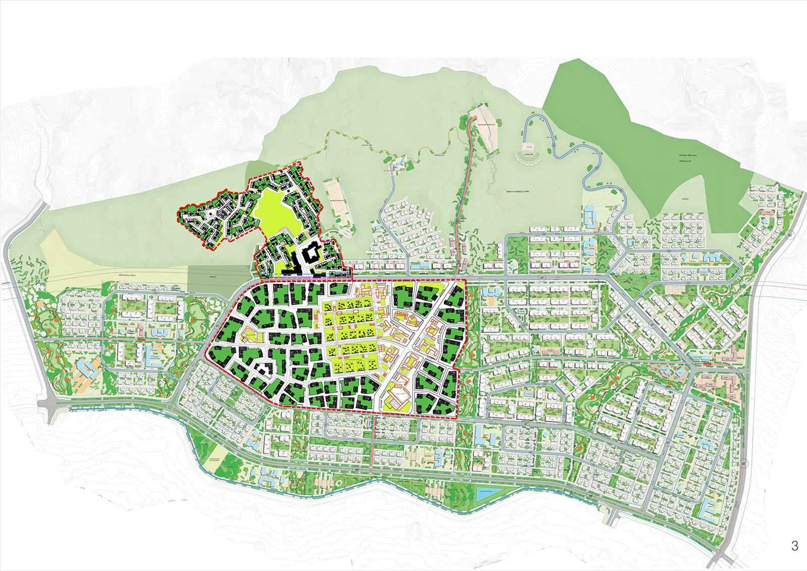
Mevcut vaziyet planı talepler doğrultusunda seri üretime uygun ve tip imalata izin verecek şekilde planlanmıştır. Bu doğru olmayan tasarım yaklaşımı tekrar ele alınmış ve ihtiyaç programına göre yeniden düzenlenmiştir. Talep edildiği gibi apartman şeklinde fakat az katlı, tekrar eden fakat avlulu ve farklı varyasyonlarla zenginleşen bir yerleşim öngörülmüştür. Hem içe dönük avluların kazanımı olarak mahremiyet ile sosyal hayat zenginleştirilmiş hem de modern çağın ihtiyaçlarına karşılık verecek şekilde üretim kolaylığı sağlanmıştır.

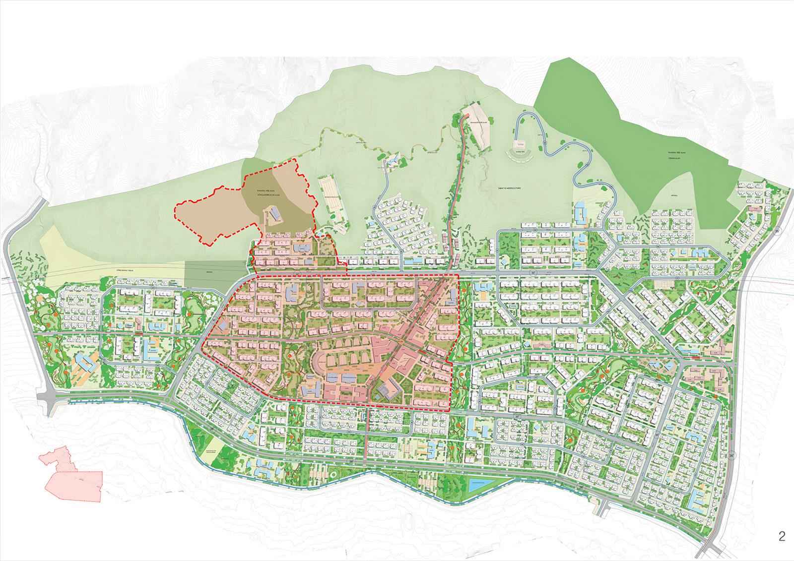
Proje alanı eski askeri araziyi de kaplayacak şekilde belirlenmiştir. İçerisinde pek çok nitelikli ve hem üretim hem tahliye maliyeti yüksek askeri yapılar barındırmaktadır. Mevcut öneri vaziyet planında bu konu dikkate alınmayarak tüm yapı stoğu ortadan kaldırılmıştır. Bu doğru olmayan yaklaşım tekrar ele alınarak mevcut yapıların niteliği araştırılmış ve mühimmat depoları, iglolar gibi geniş açıklık geçen ve dönemi için başarılı betonarme örneklerini barındıran yapılar korunmuş, yeniden fonksiyon verilmiş ve hem ticari hem sosyal hayatın birer parçası haline getirilmiştir.






















