Coğrafi konumu ve eski medeniyetlerde yaşamış insanların bıraktıkları miras gün yüzüne çıkmayı bekler bir kültür maden havzasıdır. Marka değeri olabilme adına dünya ile yarışında ticaret koluna bu madenden çıkartılacak kültür ve sanat potansiyeli de eklendiğinde kısa zamanda daha hızlı mesafeler alınabilecektir. Tasarım alanının fiziksel konumu, Kayserinin sahip olduğu kültürel kimlik ve bu bahsedilen potansiyel tasarım kararlarını şekillendiren en önemli girdiler olmuştur. Tasarım kararları alınırken, planlamada hedeflenen az katlı, alana yayılan yapılaşma ve tarihi şehir dokusu ile uyumlu yüksek kültür düzeyine sahip mimari dil oluşturmak çıkış noktası olmuştur.

Kayserinin sahip olduğu mimari üslup irdelendiğinde Bizans ve Anadolu Selçuklu Sanatlarının ürettiği ve kısmen de özgünlüğünün bu zamana kadar korunabildiği gözlemlenmektedir. Osmanlı Sanatı, sivil mimarlık örneklerinde izler bırakmış olsa da genel kamu yapılarında bu üslup bütünlüğünü göz önünde bulundurmuş olsa gerek keskin müdahaleler yapmaktan kaçınmış ve ufak dokunuşlarla yeni ürünler vermişlerdir. Bu bağlamda ele alınan Kayseri Ticaret Odası Hizmet Binası modern çağdaş normlara uygun insan odaklı bir proje olmanın ötesinde bu kültürel çerçeveyi de içine alır pozisyonda tasarlanmıştır. Bölgede miras kalan kültür yapıları incelendiğinde çoklu fonksiyon ihtiyacının tek yapı kabuğunda nasıl çözümlendiğine dair işaretler sunar.

Geleneksel Türk mimari üslubunda kabul görmüş avlulu plan tipi ve fonksiyonların kendi içerisinde ayrı ayrı tek kabuk altında geliştirdiği çözümler tasarımda ilkesel olarak benimsenmiş ve yeni biçimlerle plan/kütle/malzeme düzleminde bütünleştirilmiştir. Tasarıma kimlik verecek olan bu bölgenin avlulu içe dönük mimari çözümleri yerel malzeme kullanımı ile de pekiştirilmiştir.

Tasarımda; yapılaşılabilir alanlar ile fonksiyon ilişkileri bir araya getirilerek tarihi şehrin kültür mirası ile kuracağı diyalogun şiirselliği aranmıştır.

Planlama, kuzey güney yönünde Kocasinan Bulvarını dik kesen bir omurga ve buna bağlı birbiri ile görsel ve fiziksel temas kuran iki ayrı kütle kurgulanmıştır.

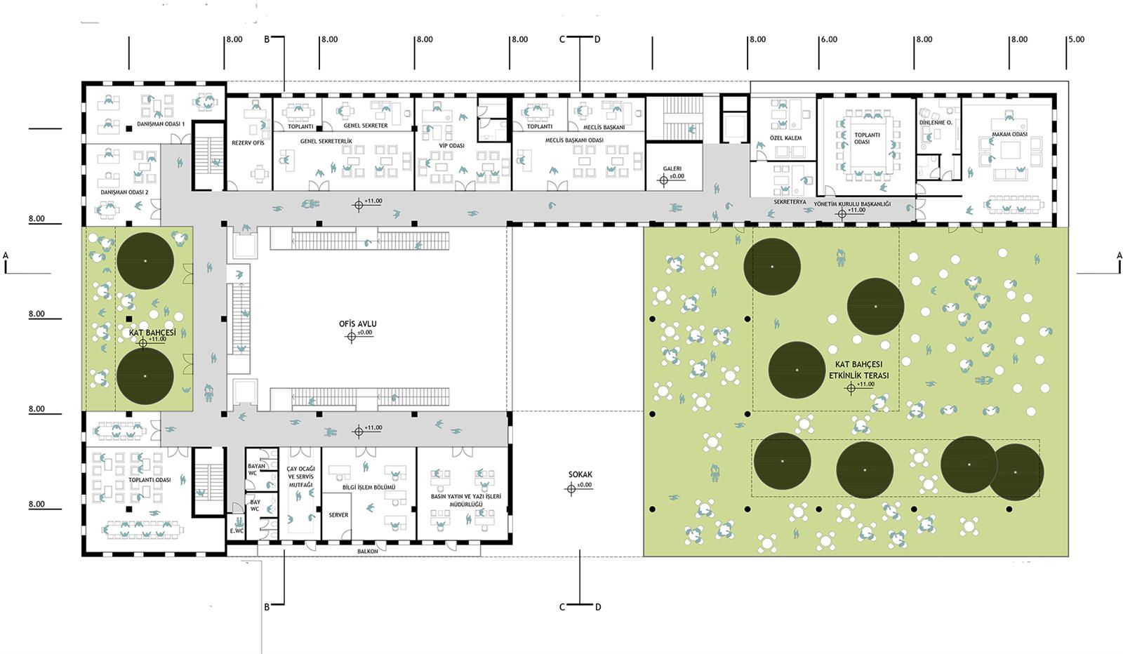
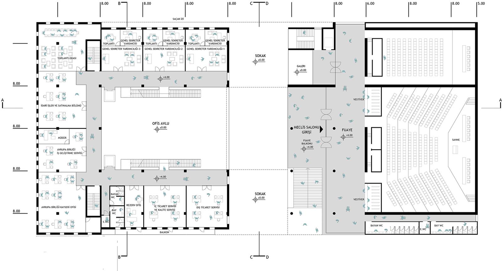
Birinci Zone, yapı adasını ikiye bölen şehirle güçlü bağ kuracak olan yaya aksını ve kompleksin girişini tarifleyen sokaktır. Kuzeye uzanan bir sokak kurgusunda işlevine göre parçalanmış yapıyı birbirine bağlayan bir arakesittir. Yaratılan bu iç sokak aynı zamanda açık/yarı açık gölgelikli mekân fonksiyonu bağlamında bir toplaşma alanıdır. Gelecekte yapılaşması düşünülen rezerv alan ile Kocasinan Bulvarı arasında KTO yapısının içine aldığı bir geçiştir.

İkinci Zone, yapı adasını ikiye bölen sokağın batı kısmıdır. Bu bölge Ticaret Odasının avlulu ofislerini ihtiva eder. Ofisler avlu içerisinde lineer devam eden koridor ve sirkülasyon alanlarının beslediği birimlerdir. Avlu içe dönüklüğü ile kontrollü doğal ışık ve havalandırma açısından maksimum konforu hedeflemiştir.

Üçüncü Zone, yapı adasını ikiye bölen sokağın doğu kısmıdır. Bu bölge Şehrin kültürel etkinliklerine de ev sahipliği yapacak olan salon ve restoranın Kocasinan Bulvarı ile en güçlü ilişkinin kurulduğu köşeyi tutan davetkar/simgesel yapı olarak tasarlanmıştır.

Zemin katta tasarlanan çok amaçlı etkinlik salonu restoran istenildiğinde sokak ve bahçeye taşabilecek biçimde çok maksatlı olarak kurgulanmıştır. Bu bütünleşmede bölge iklim koşulları da göz önünde tutularak açık/yarı açık arkadlar bölgenin güney ve doğu çeperini sararak bu konforu desteklemektedir.






