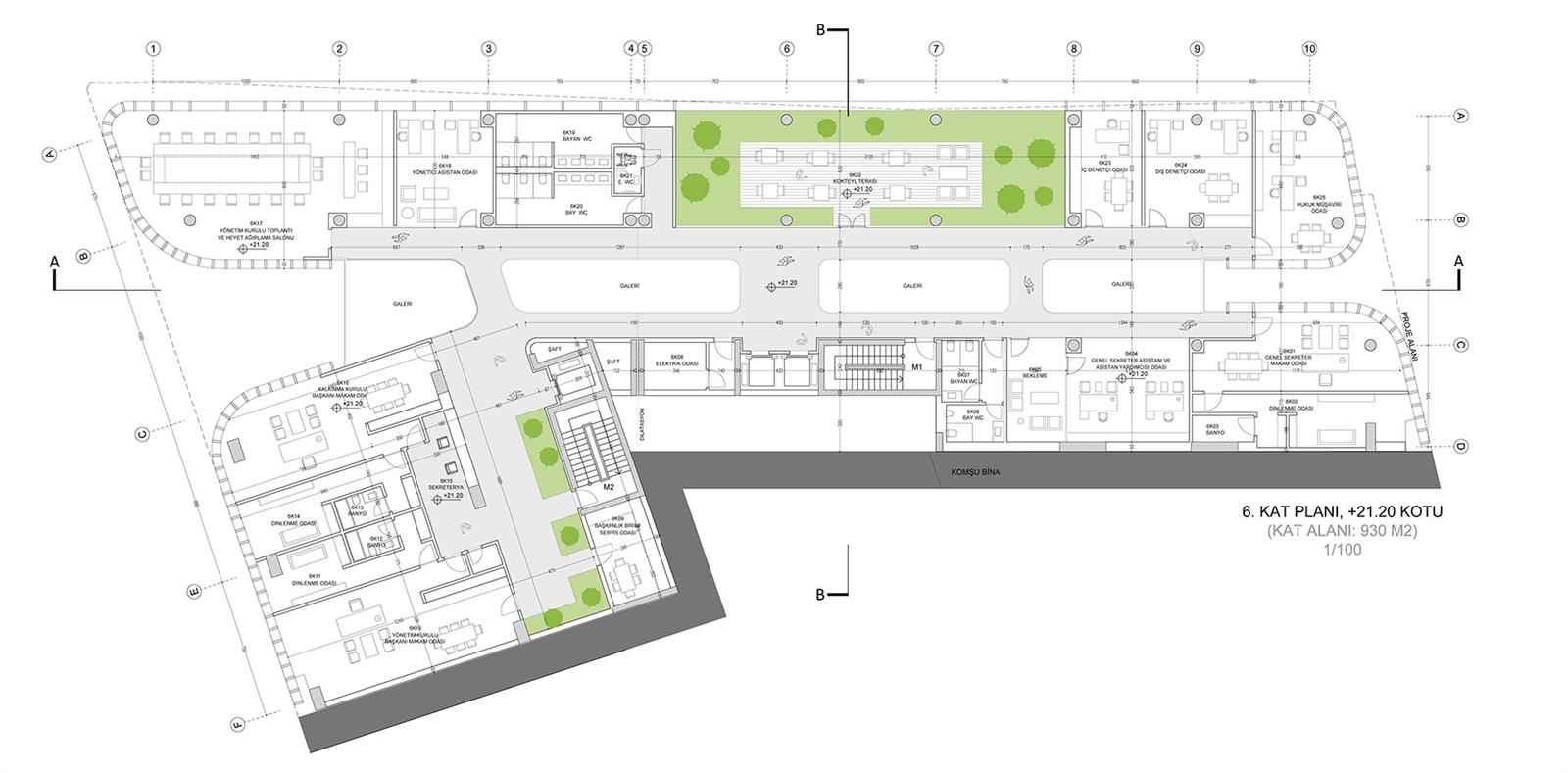
Bu bağlamda Çevresel doku dikkate alındığında Cumhuriyet Bulvarı boyunca yapı adalarının sınırlarını tutan, boşluksuz ve sürekli bir biçimde “duvarlaşarak” devam eden yapı bloklarının arasında İZKA binasının yaptığı kütlesel “geri çekilme” ve zemin katta oluşturulan “boşluk” yapının kent ile kurduğu ilişkiyi güçlendirmiş, oluşturduğu farklılık ile yapının “görünür” olmasını sağlamıştır. Yapının saydam yüzeyleri iç ve dış mekan arasındaki sınırları kaldırarak, zemin katta kurgulanan “kamusal kullanımlar” ile Cumhuriyet Bulvarı ve Fethibey Caddesini birbirine bağlayan pasajı daha güçlü hale getirmiştir. Zemin kat giriş ve karşılama mekanları dışında tümüyle kamusal kullanıma açık bir şekilde tasarlanmış, sergileme, etkinlik ve eğitim gibi hizmetleri karşılayacak “kamusal kullanıma yönelik mekan” zemin kattaki kamusal mekanlarla ilişkili olacak şekilde +4,20 kotunda oluşturulmuştur. İZKA’ dan bağımsız olması beklenen Girişimcilik Merkezi’ne ise +7,60 kotunda bir kat tahsis edilmiş ve İZKA çalışma ofisleri ile doğrudan ilişkileri kesilirken, kullanıcılarının zemin katta oluşturulan kamusal alanlardan faydalanmaları öngörülmüştür.

İZKA çalışma ofisleri açık ve yarı açık teraslarla zenginleştirilmiş, galeri boşluğunun etrafına konumlanma durumları sayesinde de iç mekandaki düşey-yatay ilişkisi sağlanmış ve gün ışığından da maksimum seviyede yararlanabilmişlerdir.

Toplantı salonları ise İZKA faaliyetlerinin yanı sıra ileriye dönük olarak kamusal kullanım potansiyelinin, kente kültürel aktiviteler anlamında sağlayacağı imkanlar göz önüne alınarak girişle ilişkili ve geçişi kontrollü olacak şekilde -4,00 kotunda çözülmüştür. Otopark, teknik hacimler, arşiv ve depolar da bodrum katlarda konumlandırılmıştır.

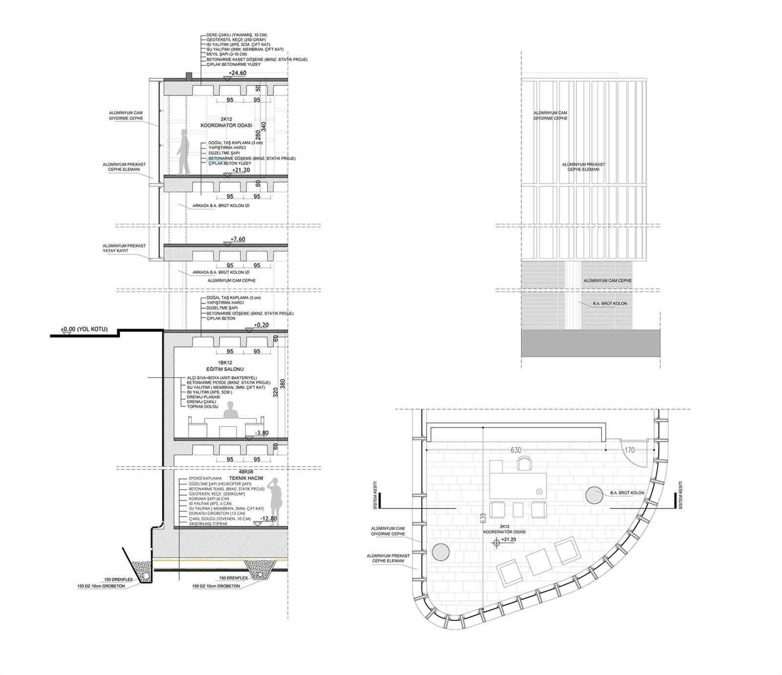
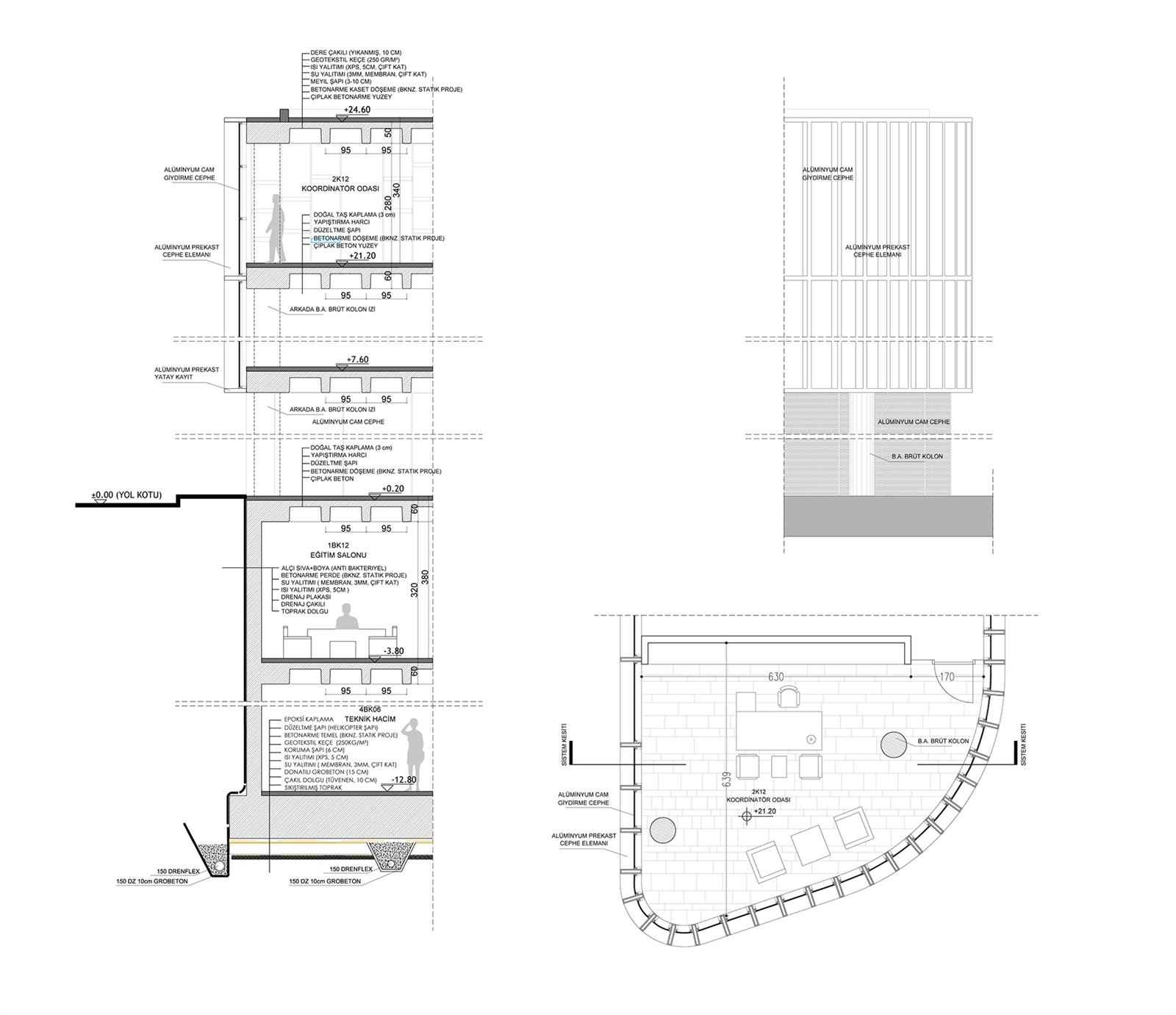
Yapıyı saran prekast kabuk yapının güneş kontrolünü sağlamaktadır. Bu kabuk eğrisel formu ve kütlesel plastiği ile birlikte çevresinden farklılaşarak “yer” tanımlama özelliği kazanmış ve “kent imgesi” ne dönüşmüştür.











