Gebze’nin ticaret/üretim/ekonomi kabiliyetinin gelişmiş olması, paralelinde sosyal/kültürel/yönetimsel bir takım ihtiyaçları da doğurmaktadır. Yenikent Ticaret ve Sosyokültürel Tesis Projesi işte tam olarak bu ihtiyaç programının neticesi olarak hayata geçirilmiş bir kolektif çalışma ürünüdür. Tasarım alanı ticari, eğitim, kamu, sosyal birimler gibi pek çok farklı fonksiyonda üretilmiş yapılarla çevrelenmiş durumdadır. Üst yol kotu olan 2424 Sokak’ta düzenli olarak kurulan halk pazarı, bitişik komşu parseldeki spor alanı, arkadaki ilkokul ve öndeki kreş binaları, düğün salonu ve çeşitli ticaret yapıları bulunmaktadır. Tüm bunların yanında güçlü spor, rekreasyon ve sosyal mekanların da oluşu yerli halkın zihninde bu bölgeyi farklı bir duruma getirmiştir. Bu alışılan kullanıcı beklentileri ve kamu yararı refleksleri ihtiyaç programını şekillendirmekte haylice etkili olmuştur.

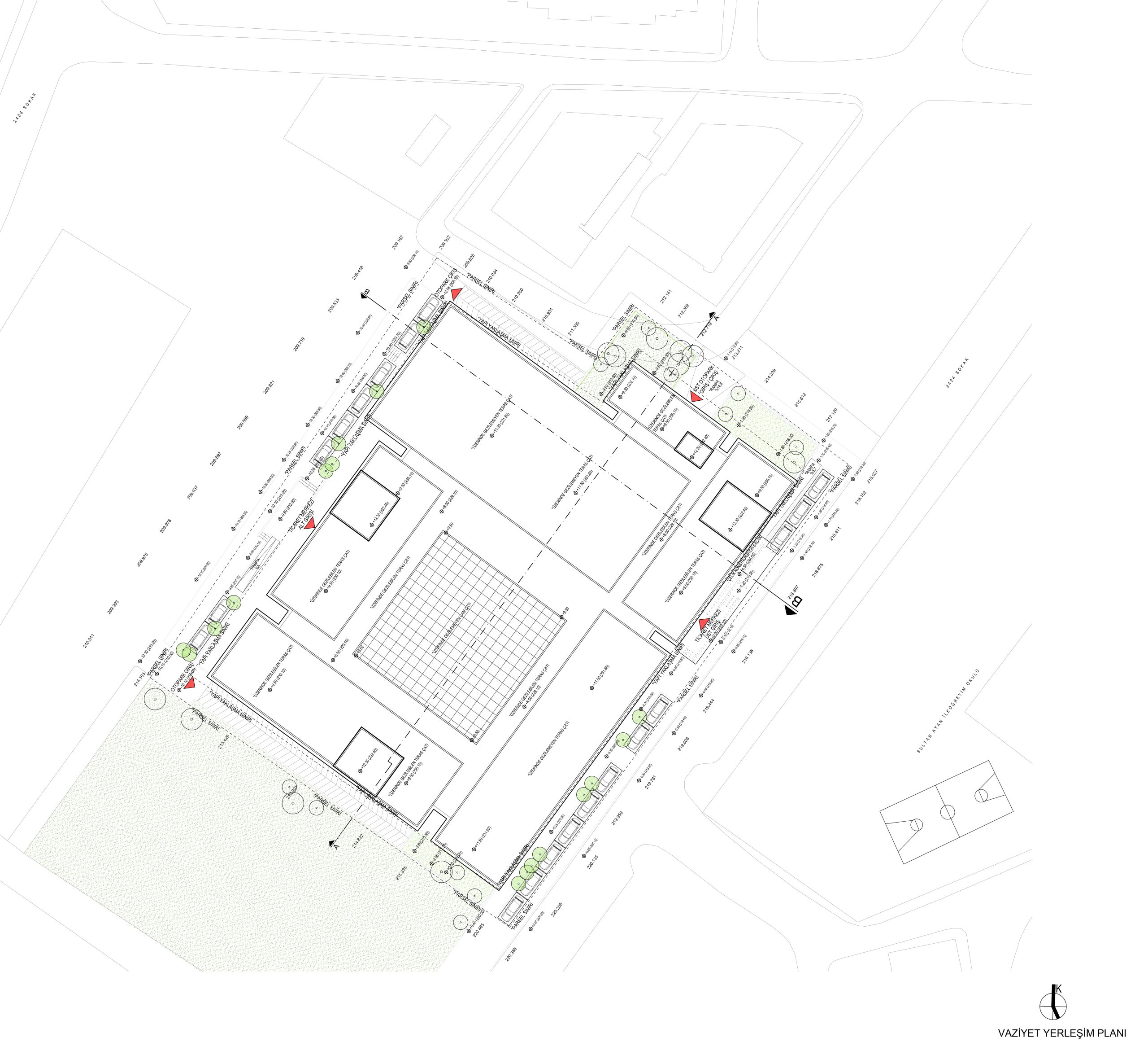
Proje tasarım alanı önde Gebze’nin ticari ve sosyal hayatının toplandığı Issıkgöl Caddesi ‘ne paralel; arkada Sultan Ayhan İlkokulu’na ve daha da arkada Gaziler Dağı ve Mesire Ormanı’na sırt verecek şekildedir. Tasarım parsel alanı 6.199 m² büyüklüğünde ve eğime uzun kenarı paralel olacak şekilde dikdörtgen formundadır. Yapılaşılacak bu dikdörtgen parsel alanında üst kot olarak 2424 Sokak kabul edildiğinde (+220,10) alt yol kotuyla üst yol kotu arasında (+210,00) tabi zemin farkı 10.00 metredir.

Mimari yapı tasarım kararları oluşturulurken bağlayıcılığına göre çok farklı bilgiler etkili olur. İhtiyaç programı, kullanıcı refleksleri, iklim, topografya, sosyokültürel durum, işveren talepleri, yatırım ve işletme maliyetleri gibi pek çok başlık tasarım kararlarını verirken bağlayıcı olur. Tüm bu başlıklara ilaveten yapının genel konsepti belirlenirken Gebze’nin bir sanayi şehri oluşundan, endüstriyel üretim ile olan sosyal / ekonomik / kültürel diyaloğundan da referans alınmıştır. Gebze Yenikent Ticaret ve Sosyokültürel Tesis Tasarımı bu bilgilerin hepsini kapsayacak şekilde hayat bulmuştur.

İhtiyaç programı; ticari birimler, sosyal birimler, yeme içme alanları, etkinlik ve davet alanları, düğün salonu, yarı açık / kapalı pazar yeri, açık / kapalı otopark gibi pek çok farklı fonksiyonları barındırmaktadır. Tasarım alanına yerleşecek olan yapı mevcut arazi kotuna muhalefet etmektense onu fırsat bilmiş, en asgari hafriyat ile zemine yerleşmiş, parçalanmış ve farklı fonksiyonların olduğu kütleler haline gelmiştir. Bu zenginlik, çeperdeki yollardan farklı fonksiyon kullanıcılarının rahatlıkla yapıya erişebilmesini de sağlamıştır. Bu aynı zamanda parçalanan kütleler ile insan ölçeğine muhalefet edebilecek monoblok yapı etkisini de ortadan kaldırmıştır.

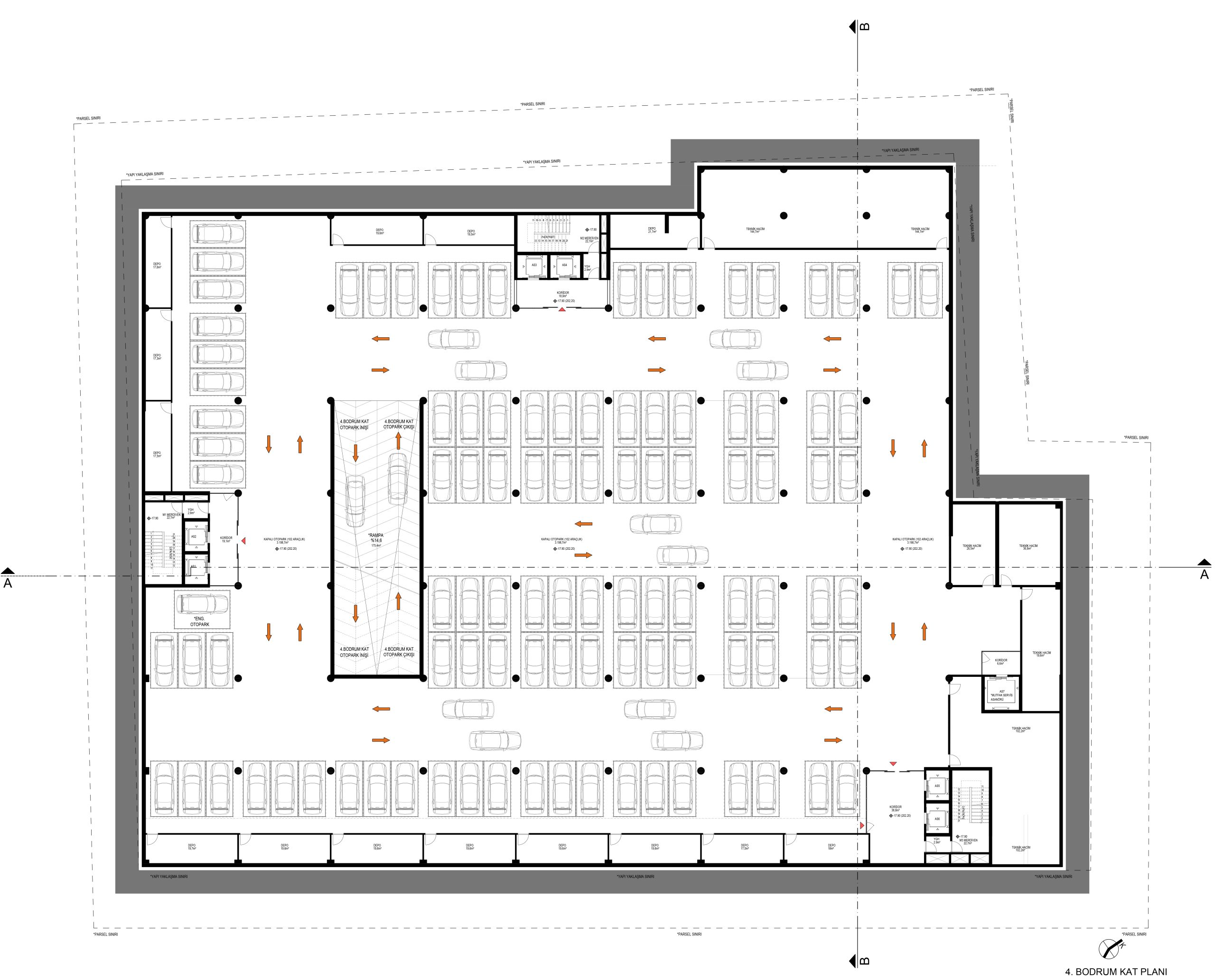
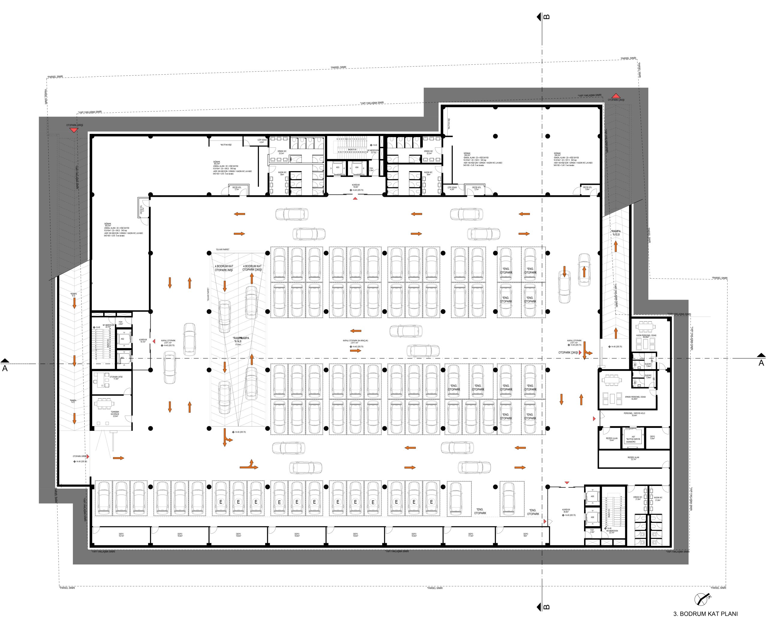
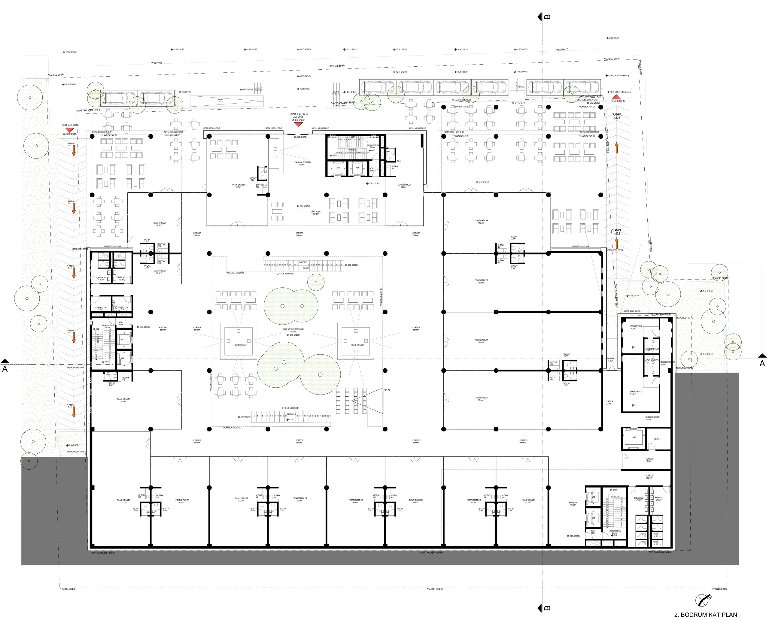
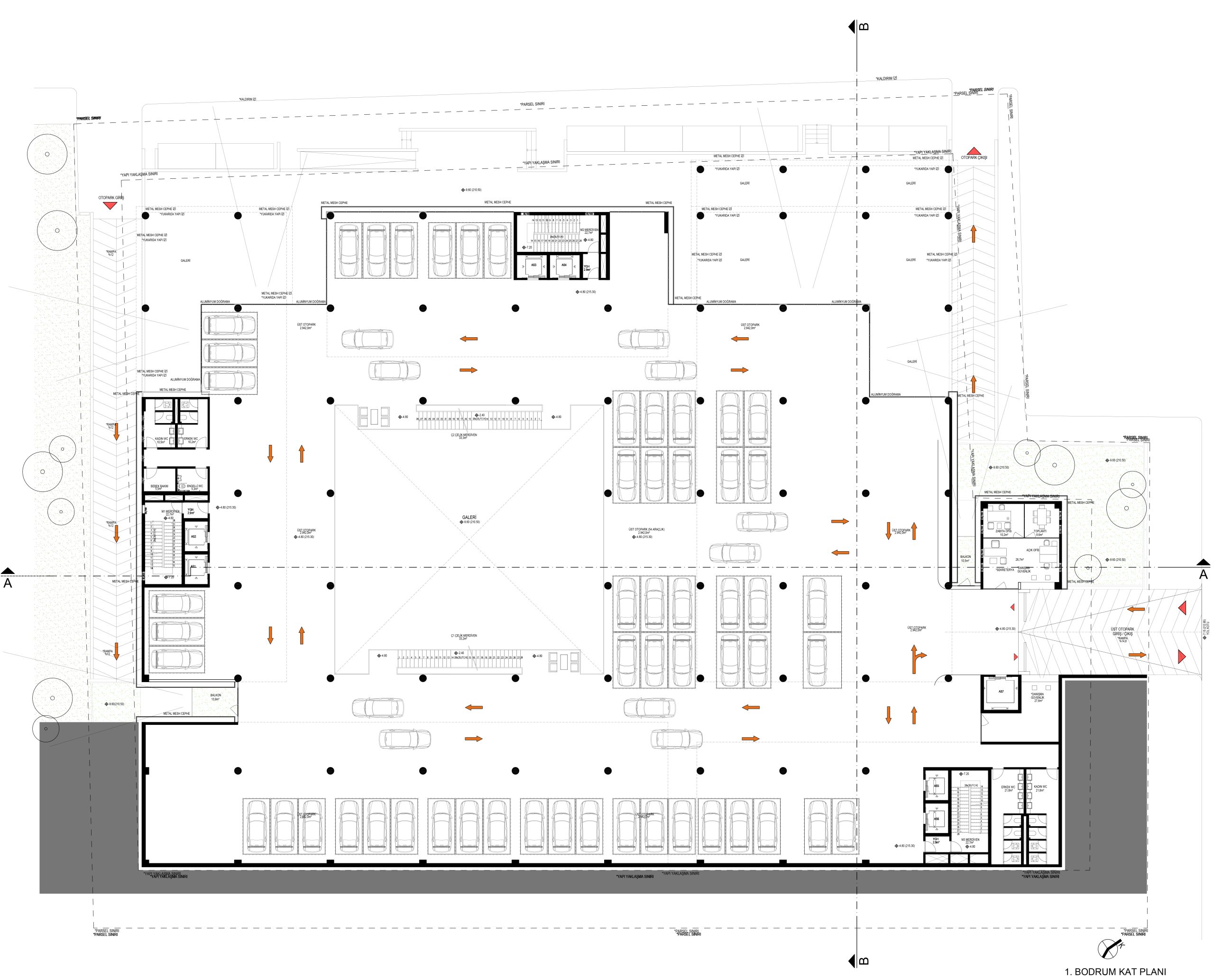
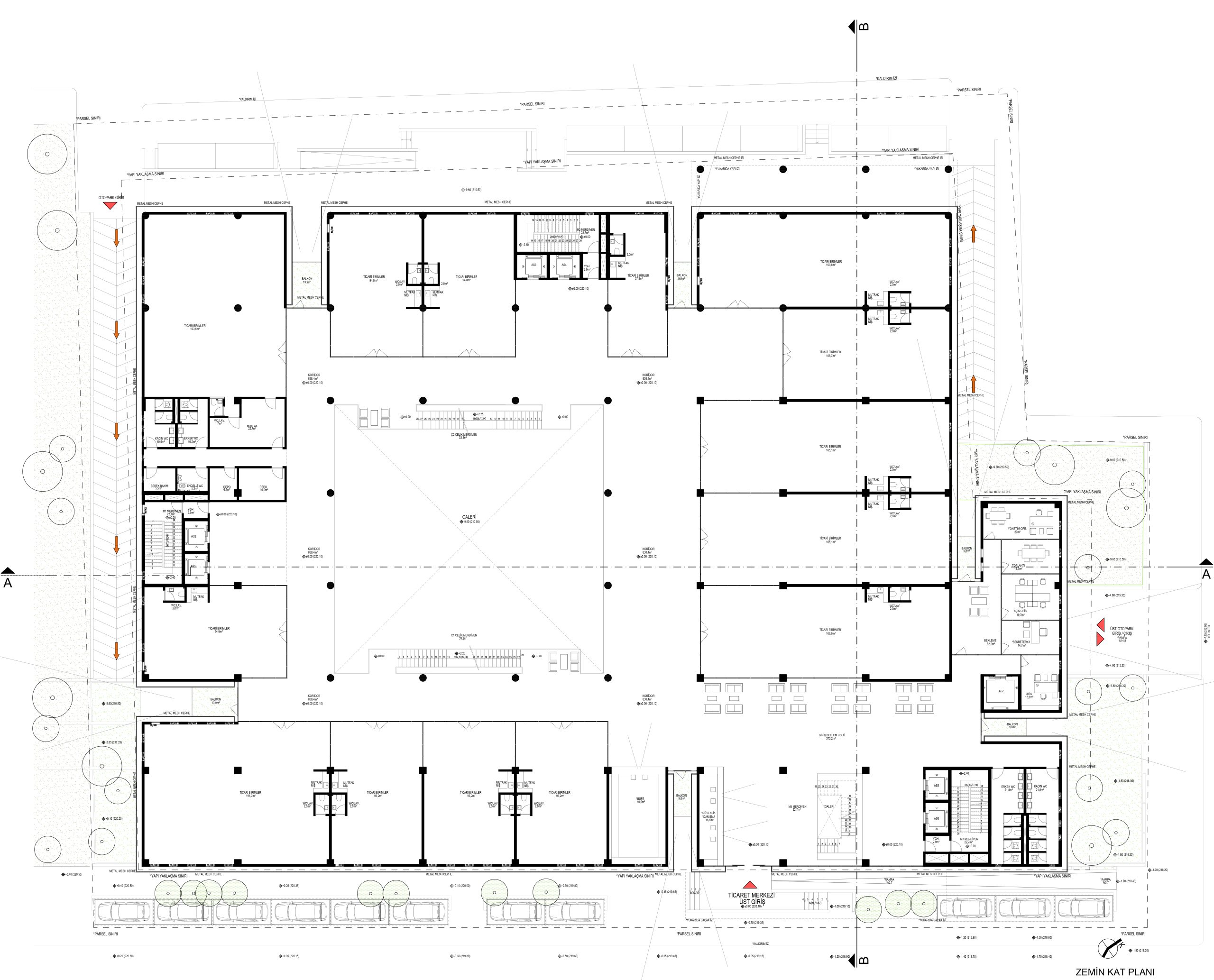
Yapı tam hafredilen 2 bodrum ve açığa çıkan 2 bodrum olacak şekilde araziye setlenerek / teraslanarak yerleşmiştir. Sosyal ve ticaret hayatının olduğu Issıkgöl Caddesi alt yol kotundan yapının kapalı otopark giriş ve çıkışları ve ticaret merkezi birincil ana girişi kurgulanmıştır.

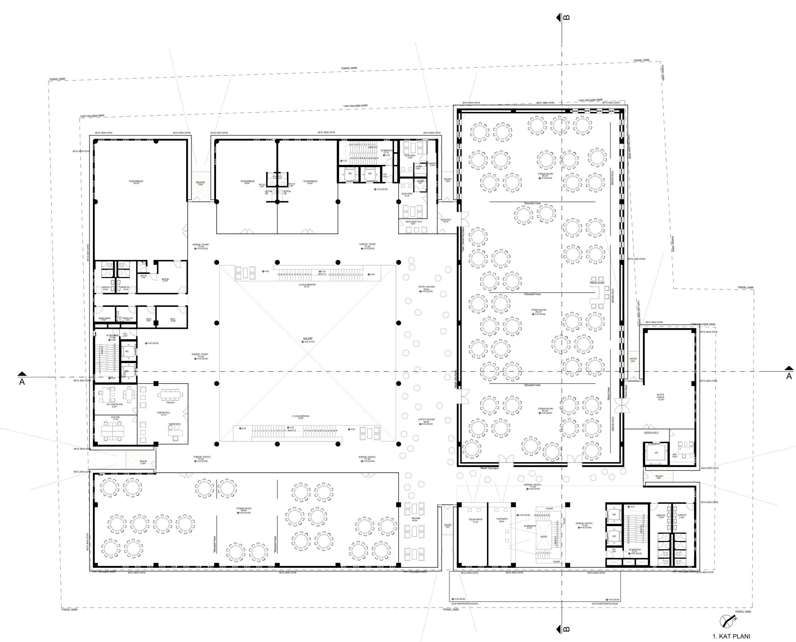
Yapı zemin kotta ayaklar üstüne kaldırılarak mekan zenginliği hedeflenmiş; kamuya terkedilmiş ve açık / yarı açık / kapalı mekanlar sunmuştur. Ticaret birimlerinin yeme içme gibi pek çok fonksiyonu dışa dönük bu zemin katında kurgulanmıştır. Kapalı Pazar ve otopark giriş ve çıkışları tüm bu sistemden kopartılarak, kotun vermiş olduğu fırsat ile açığa çıkan ara bodrum katında 2444 Sokak’ta kurgulanmıştır. Bu yapının farklı fonksiyonlardaki birimlerini hem kütle hem işleyiş olarak kopartmış; operasyonel olarak kolaylık sağlamıştır. Yine aynı farkındalık ile yapının üst yol kot girişi 2424 Sokak üzerinden verilmiş ve çoklu etkinlik salonları, düğün salonları, kokteyl alanları gibi birimlerin fuayelerine erişimleri de bu şekilde sağlanmıştır. Farklı kullanıcı profilleri farklı fonksiyonlara farklı yerlerden aynı yapıya birbirlerini en az şekilde rahatsız ederek erişebileceklerdir. Bu farklı kullanıcıları yapı içerindeki genişçe bir avlu birleştirir. Doğal ışık ve doğal havalandırmaya imkan veren bu avlu etrafını yatay sirkülasyon balkonları sarar. Farklı dikdörtgenler prizması şeklindeki farkı fonksiyon birimleri avluya koridorla takılmıştır.

Mimari tasarım ana kararları verirken pek çok etken gibi malzeme ve yapı eleman tercihleri de oldukça önemlidir. Erişilebilirlik, ekonomik durumu, imalat ve erişilebilirlik kolaylığı, kamu yararına yatırım ve işletme maliyetlerine olan etkisi gibi pek çok durum göz önünde bulundurulur. İklim, işlevsellik, kültürel referanslar, kullanıcıya psikolojik etkisi gibi pek çok konu da karar vermede etkilidir. Gebze Yenikent Ticaret ve Sosyokültürel Tesis Tasarım kararları da bu bağlamda verilmiştir. Yapı taşıyıcı sistemi betonarme kurgulanmış, açığa çıkan yerlerde brüt beton ile doğal görünümünde dairesel kesitli düşey taşıyıcılar ve kaset döşeme şeklinde yatay bağlayıcılar oluşturulmuştur.

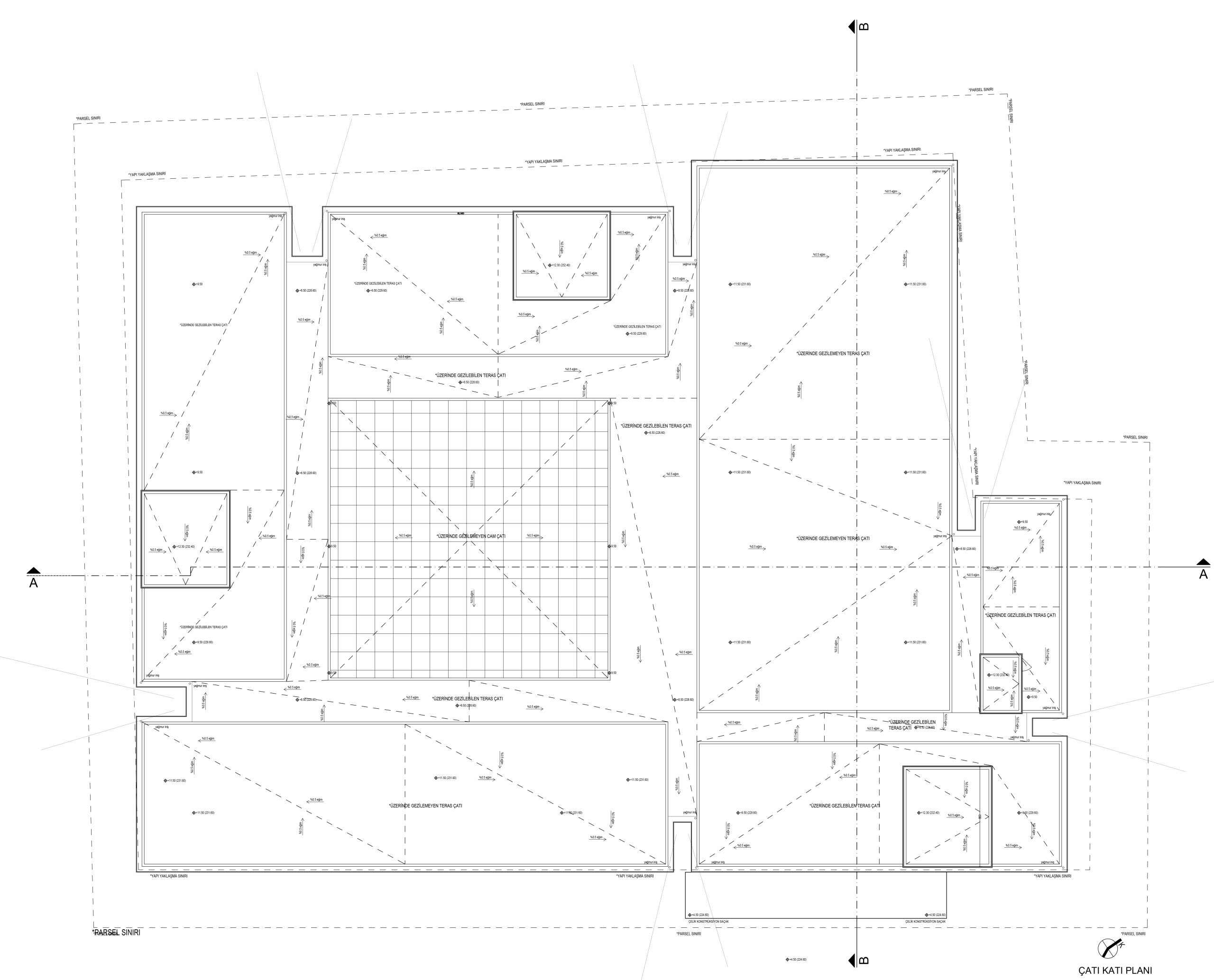
Aks aralıkları otopark / pazar yeri kullanımlarına ve ekonomik imalat yöntemlerine en uygun olacak şekilde belirlenmiştir. Yapıda geniş açıklık geçilen çoklu etkinlik salonları ve düğün salonu gibi birimlerde ise bu betonarme üzerine çelik konstrüksiyon ile düşey ve yatay taşıyıcılar tasarlanmış ve kullanıcı hareket kabiliyeti düşünülmüştür. Bu farklı kotlarda biten farklı fonksiyonlardaki dikdörtgen prizmalar şeklindeki kütleler, üzerinde gezilemeyen / gezilebilen teras çatılar ile sonlanır. Yapı elemanları tercih edilirken, fonksiyonların ihtiyaç duymuş oldukları iklimlendirme ve ışık alma farklıları dikkate alınmıştır. Düğün salonu gibi kontrollü ışık alınması beklenen birimler ile ofis gibi aktif ışık talep eden birimler için bu farklılar, farklı büyüklüklerde pencere açabilme / kapatabilme talebine karşılık verebilmelidir. Bu sebepten her fonksiyonun ihtiyaç duyduğu açıklık cephede dolu boş dengesini de gözeterek yapıya işlenmiştir. Bu farklılığı kontrol altına alabilmek için cephede ikinci bir cidar oluşturulmuştur. Bu ikincil yüzey, arkada kalan doğramaların ihtiyaca mukabil özgürce belirlenebilmesini sağlamıştır. Bu ikincil yüzey kontrollü ışık ve hava geçirgenliğine sahip metal mesh malzemeden tercih edilmiştir. Bu malzemenin ve renginin tercih edilmesi de yine yapının genel konsepti gibi Gebze’nin bir sanayi şehri oluşunun, endüstriyel üretim, modernite ve bu değerlerin temsil ettiği metal ile olan sosyal / ekonomik / kültürel birlikteliğinden referansla ele alınmıştır.

Gebze Yenikent Ticaret ve Sosyokültürel Tesisi 6.199 m² parsel alanı içerinde 24.675 m² inşaat alanına sahip olacak şekilde tasarlanmıştır. 12 adet elektrikli araç şarj istasyonu, 13 adet engelli olmak üzere toplam 260 araçlık otopark kurgulanmıştır. Yapı çeperini saracak şekilde 56 adet genç ağaç düşünülmüş ve yeşil bir çeper oluşturulmuştur.

Yapının ihtiyaç programı dahilinde mekanları cebri havalandırma ve mekanik havalandırmaya uygun olacak şekilde düşünülmüştür. Aynı şekilde aydınlatma tercihleri de hem doğal hem kontrollü aydınlatmaya izin verecek şekilde değerlendirilmiştir. Yapı mekanik tasarım önerisi yağmur suyu kullanımı, gri su kullanımı gibi pek çok ekolojik yaklaşıma olanak sağlamaktadır. Malzeme tercihlerinin yanında bu doğal iklimlendirme, aydınlatma, işletme gibi kararlar sürdürebilir bir yapı kompleksi hedeflemektedir. Yapının yatay ve düşey sirkülasyon tasarımı ayrıca engelli erişimine, bebek ve alışveriş arabalarına kullanım kolaylıkları sağlamaktadır. Yapı peyzaj kararlarında; yapının çeperinde kısa süreli araç yaklaşma cepleri ve park alanları, kent mobilyaları, aydınlatma tasarımları, doğal taş kaplama malzemeleri, yöresel yaprak dökmeyen ağaçlar tercih edilmiştir.













