*ULUSAL MİMARİ PROJE YARIŞMASI 3. ÖDÜL
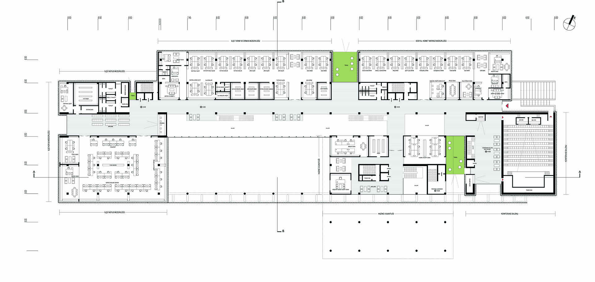
Yapı tasarım kararları alınırken en bağlayıcı refleks kullanıcı davranışlarıdır. Tasarım alanına şehir merkezi yönünden gelecek olan kullanıcı erişimi önemsenmiş olup, millet bahçesine yöneliş ve mevcut ağaç dokusu kütle yerleşiminin başlıca belirleyicileri olmuştur. Yapı kütlesi, parselin batı ucundaki daralan üçgen alandan geriye doğru çekilerek konumlanır ve burada oluşan meydan ile kent merkezi yönünden ve kuzeydeki konut bölgelerinden alana gelen kullanıcıyı karşılar. Alanın kuzeyindeki mevcut ağaç dizisine yaslanan kütle, ayaklar üstünde zeminden yükselerek alt meydanda oluşan kamusal açık alanı proje alanı boyunca, yayvan merdiven ve rampalarla sırasıyla kademeli avlu, üst meydan ve konferans salonu meydanından geçirerek parselin doğusundaki park ve kuzeyindeki ticaret alanları ile bağlar. Yapı programı yoğun olmasına rağmen arazinin eğimine göre, ağaçların tanımladığı boşluklara parçalı bir şekilde yerleşen yapı kütlesi, bina programının gerektirdiği kapalı alanda kurulması gereken mekansal ilişkileri sağlarken, volümetrik kompozisyonu sayesinde de yerin ölçeğiyle daha uyumlu bir durum oluşturur. Parçalı kütle kurgusu yapı programına göre şekillenmiştir. Kullanım yoğunluğu ve birbirleriyle ilişkilerine göre birimler öbeklenmiştir.

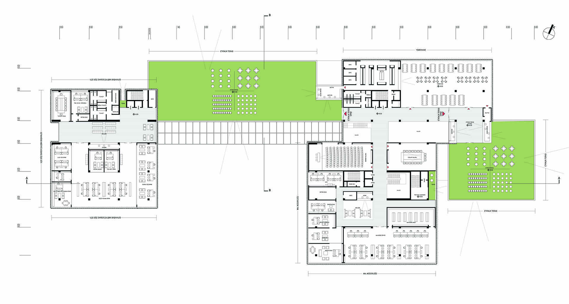
Nüfus müdürlüğü, sosyal yardımlaşma ve dayanışma vakfı ve ilçe göç idaresi gibi kullanım yoğunluğu fazla olan birimler 198 kotundaki alt meydandan ayrı bir giriş imkanı da olacak şekilde aynı blokta toplanmıştır. Kaymakamlık kütlesi de ilişkili olduğu mal müdürlüğü ve hazine avukatlığı birimleriyle beraber düşeyde ilişkili olacak şekilde aynı blok içerisinde çözümlenmiştir.Kütle kompozisyonunda egemen unsur olarak konumlanan kaymakamlık bloğu ayaklar üstünde yükselmiş ve öne çıkan duruşuyla şehir merkezi yönünden gelen kullanıcıyı karşılayarak, üst meydandaki hükümet konağı girişine yönlendirirken aynı zamanda da park yönündeki yaya hareketine olanak sağlar. Kaymakamlık kütlesine bina içerisinden erişilebildiği gibi 202 kotundaki üst meydandan da ayrıca bir giriş düzenlemesi yapılmıştır.

Alanın kuzeyinde lineer bir biçimde, arazi eğimine göre kademeli olarak uzanan kütlede ise milli eğitim ilçe müdürlüğü, tarım ve orman müdürlüğü ile sosyal hizmet merkez müdürlüğü bulunur. Bu kütle önündeki atriumla birlikte yapı parçalarını bir araya getiren bir bağlaç görevi görür.

Programda ortak alan olarak belirtilen konferans salonu, kamusal kullanım potansiyeli düşünülerek dış mekandan ayrı bir girişi olacak şekilde planlanmıştır. Konferans salonu alanın doğu ucuna ilişir ve önündeki meydan ile birlikte parkla bütünleşir.

Otopark çözümü ise Yeni Bağdat Caddesi üzerinden hemzemin bir girişi olacak şekilde 198 kotundan sağlanmıştır. Otopark katındaki mesafeler göz önüne alınarak, giriş çıkış sirkülasyon kolaylığı sağlaması açısından parselin güneyindeki imar yoluna 200 kotundan bir araç erişimi daha sağlanmıştır.

Cephe kurgusunda, yerin endüstriyel kimliğinden ilhamla, metal çubuk elemanlar kullanılarak, kütle kompozisyonunu öne çıkarır bir biçimde yalın ve soyut bir dil tercih edilmiştir.










