Yapılaşma alanının üç yüzeyi araç yolları ile çevrelenmiş olup batı çeperinde bir kamu yapısı olan adliye binası yer almaktadır. Dolayısıyla yaya ve ulaşım açısından çekme mesafeleri ve irtifa dışında herhangi bir yapısal kısıtlama yer almamaktadır. Çevrede aktif olarak kullanılan Mehmet Oğuz Bulvarı ve yakınında mevcut yaya yoğunluğunu taşıyacak olan Rasih Kaplan Caddesi’nin kesiştiği noktada bulunması kullanıcı sirkülasyon potansiyeli açısından önemlidir. Yaya sirkülasyonunun ve hızlı trafik aksının olduğu Mehmet Oğuz Bulvarı yerine, ikincil araç yolu konumunda olan Dumlupınar Caddesi’nden otopark girişi ve araç sirkülasyon bağlantısı düşünülmüştür.

Tasarım alanının araç ve yaya ulaşımının yoğun olduğu Mehmet Oğuz Bulvarı ile Rasih Kaplan Caddesi’nin kesiştiği odak noktada bulunması yerleşim ve tasarım kararları açısından belirleyici olmuştur. Proje tasarım alanının kente bakan yüzün yamacında yer alan mevcut çarşı ve pazar alanlarının oluşturduğu yaya sirkülasyon yoğunluğu ticari ve sosyal kültürel mekanların bu caddeye bakan çeperde konumlanmasında etkili olmuştur.

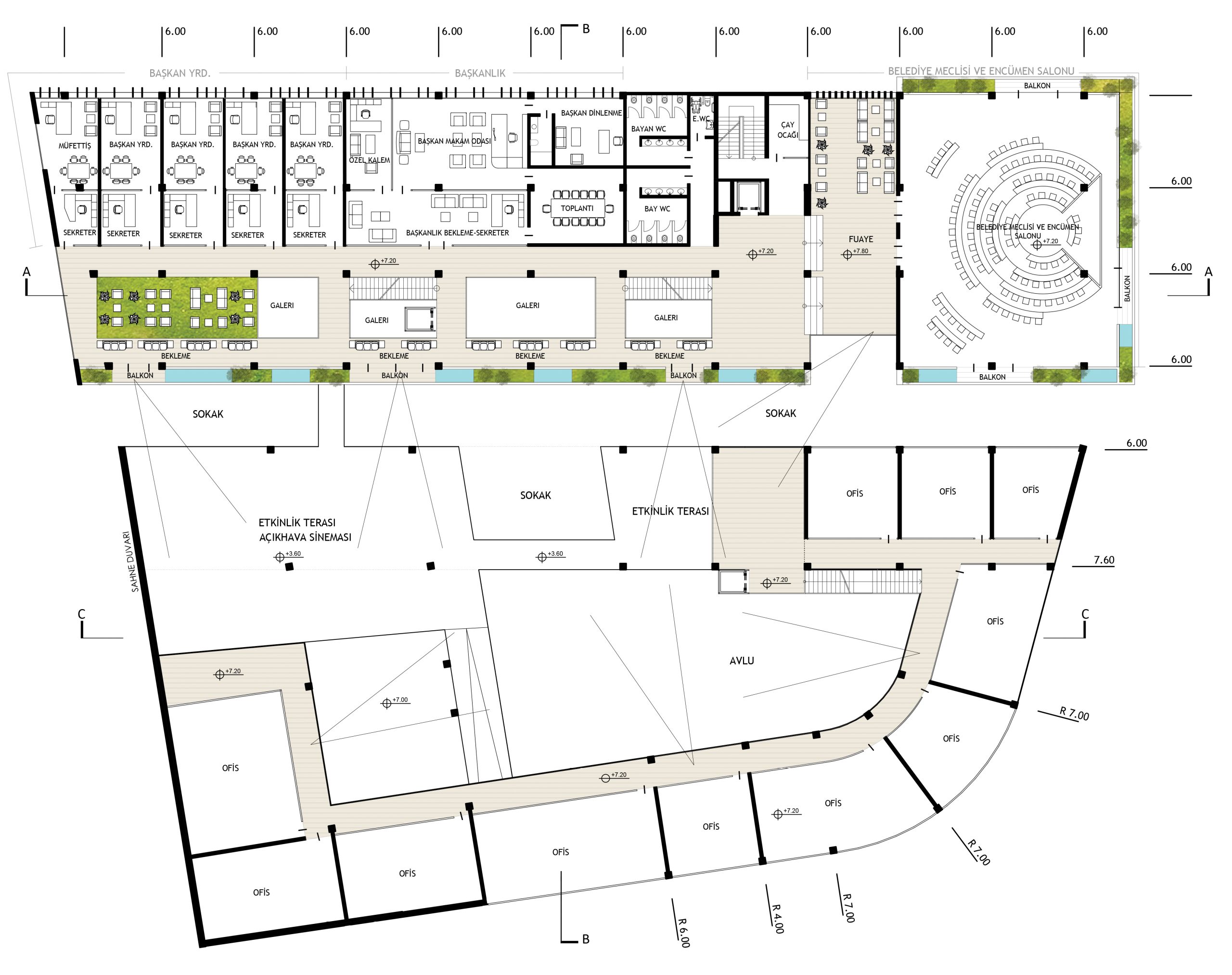
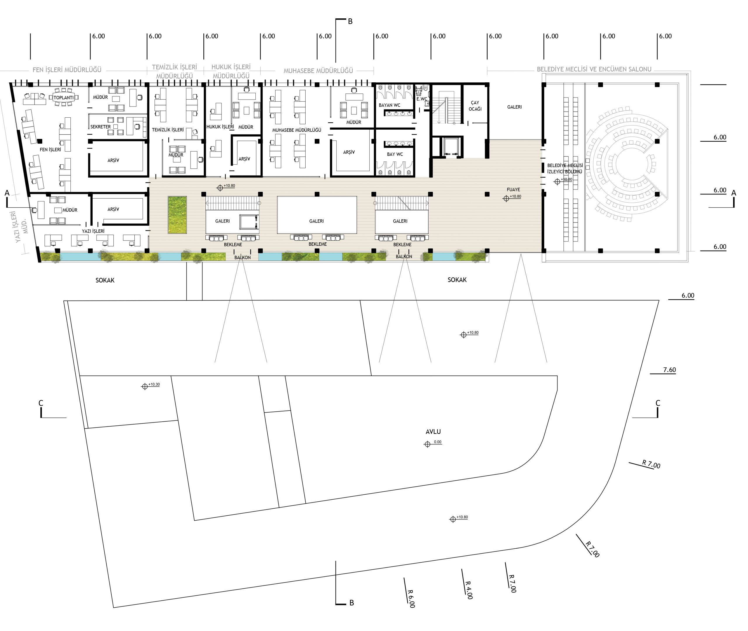
Mevcut imar planında park olarak tanımlanan ve şuan hal olarak kullanılan bölgenin ilerleyen yıllarda şehrin gelişim odağını oluşturma hedefi doğrultusunda kent parkına dönüştürülmesi önerilmektedir. Belediye hizmet binası doğu batı doğrultusunda Dumlupınar Caddesi üzerinde tasarlanmıştır. Bu durum çarşılarla çevrelenmiş iç avluya yaya bağlantısını güçlü bir şekilde korumak ve avlu arakesitinden sonra kullanıcıyı belediyeye bağlamak ve bu sayede araç sirkülasyonlarının arka caddede bitirilmesi hedeflenmiştir.

Çarşı ve sosyal mekanların meydan ve şehirle ilişkisini güçlendirmek ve daha yüksek kütleye sahip belediye hizmet binasını kademeli olarak parselin arka cidarında konumlandırmak tasarımın ana kararını oluşturmuştur. Bölgenin iklim verileri dikkate alındığında avlulu açık / yarı açık mekanlara ihtiyaç duyulduğu aşikardır. Dolayısıyla yoğun ihtiyaç programının imkan verdiği ölçülerde iç avlu oluşturulmuştur.

Sosyal ve kültürel mekan olarak avlu çok çeşitli aktivitelere imkan verecek esneklikte tasarlanmıştır. Birinci ve ikinci katlarda seyir teraslarıyla kontrollü olarak içe ve dışa dönük vistalar sunulmuştur. Kentin çeşitli kültürel aktivitelerine imkan verecek sinema salonları kullanım yoğunluğu erişim açısından meydanla ilişkili olarak ve avlunun içe dönüklüğünü belirli noktalarda pekiştirmek için zemin katta düşünülmüştür. Avlu içi aktiviteleri için etkinlik terasları tasarlanmış ve çeperlerdeki belediye hizmet binası ve ofislerden köprüler ile bağlantı zenginleştirilmiştir.

Çeşitli aktivitelere imkan sunacak olan etkinlik terası kullanıcıyı rampa ile içeri alan kamusal bir platforma dönüşmektedir. Komşu parselde bulunan adalet sarayı ile kullanıcı kamu mahremiyetini korumak için sahne duvarı tasarlanmıştır. Bu sahne duvarında geleneksel açık hava sinemaları ve çoklu kültürel etkinlikler için uygun mekan yaratılmıştır.

Ticari mekanlar dışında avlunun dışa bakan yüzeyleri kapalı tutularak avlunun gücü artırılmış ve içe dönüklük pekiştirilmiştir. Fonksiyon açısından belediye binası ile sosyal ve ticari mekanların kopuk kütleler oluşturulması cephe kararlarıyla ortadan kaldırılmış ve ortak malzeme ile bütünleştirilmiştir. Cephelerde perfore sac ile oluşturulmuş ikincil yüzey yapıyı güneşin etkilerinden korurken görsel açıdan kesintisiz bir manzara imkanı sağlamaktadır. Cephe malzeme belirlemede, yapı elemanlan ve malzeme renk tercihlerinde Gazipaşa ile özdeşleşmiş yerel bir tavır takınılmıştır.













