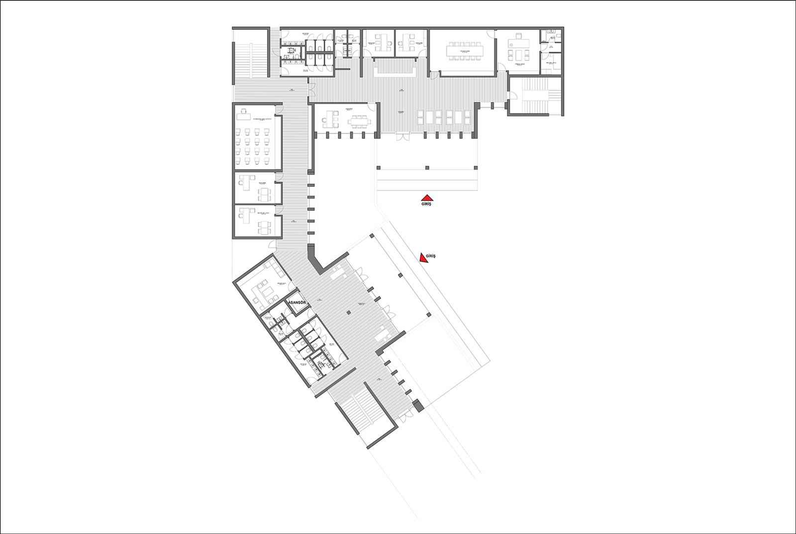
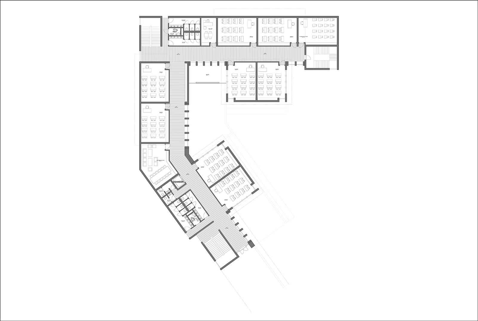
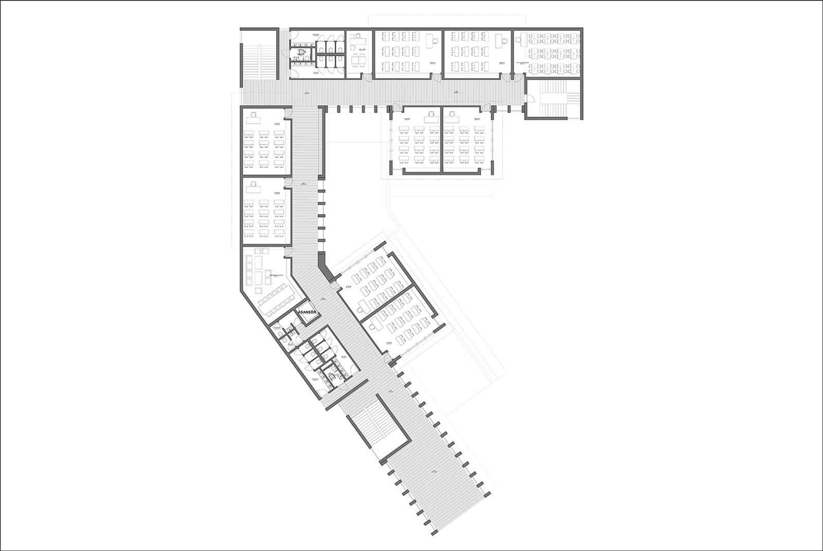
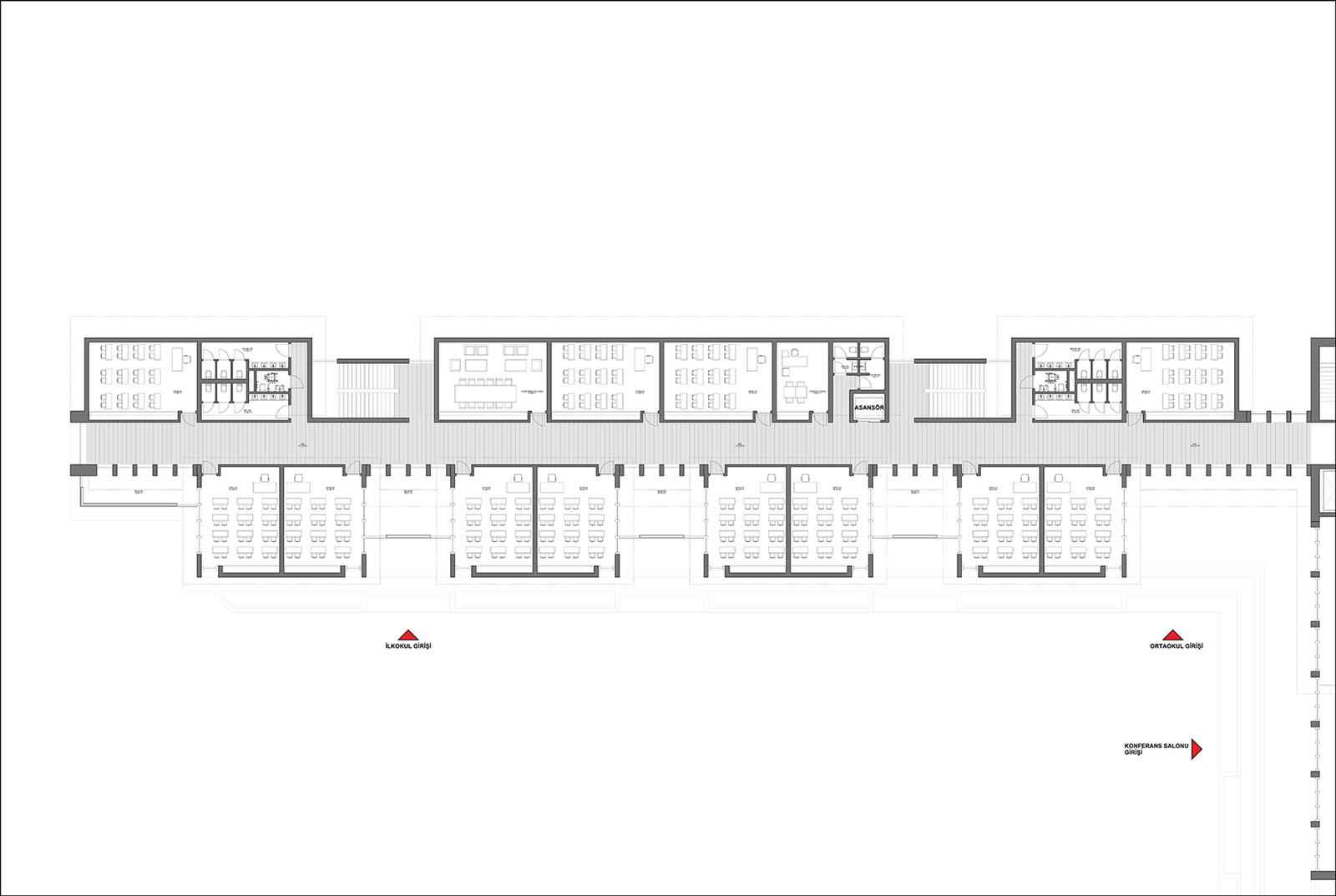
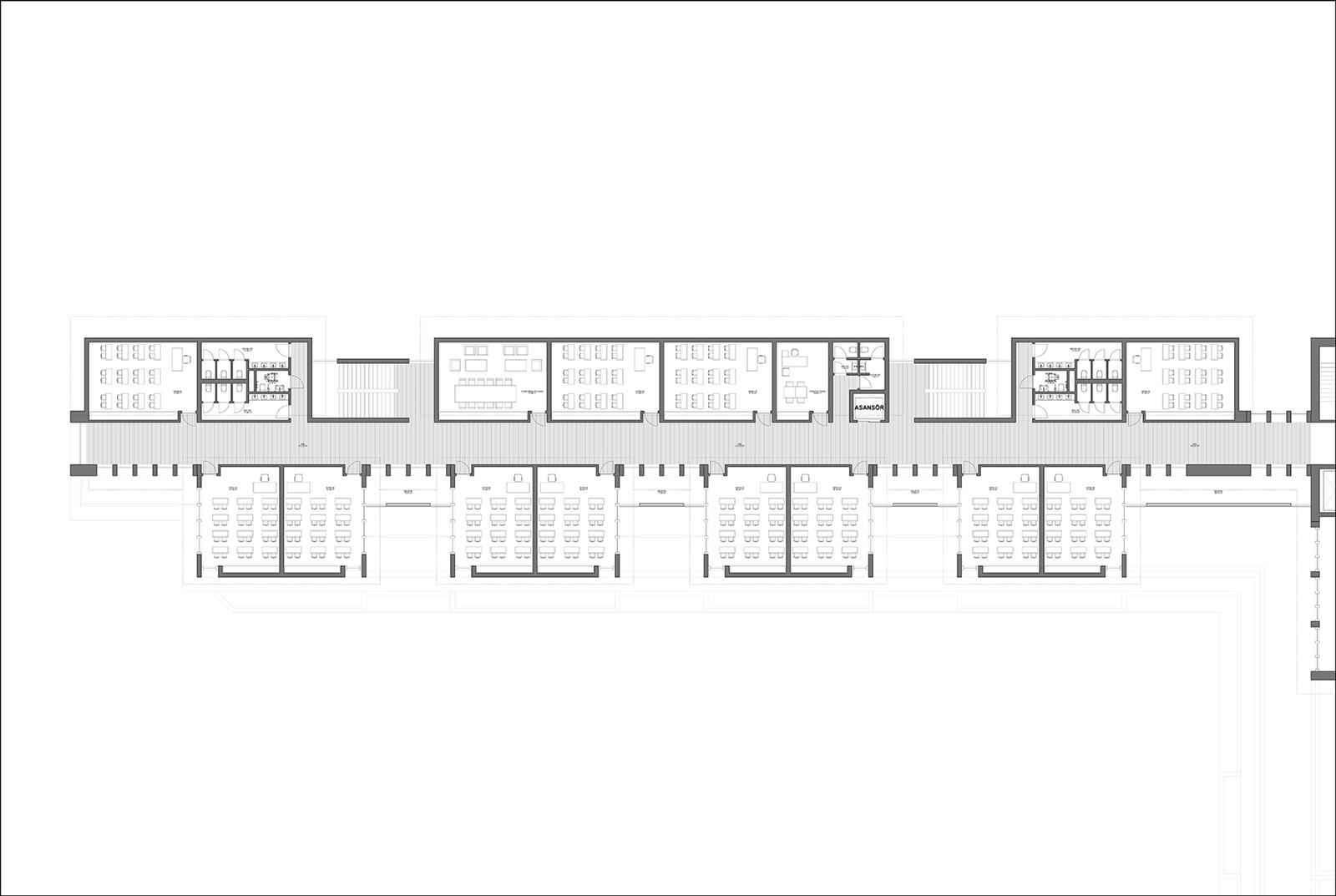
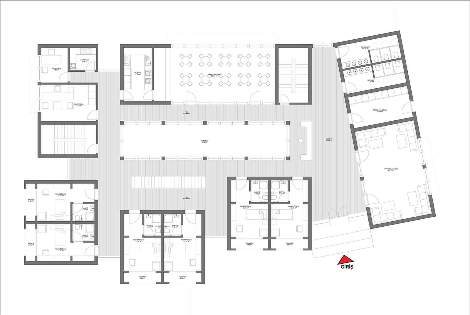
Eğitim kampüs tasarım kararları alınırken ihtiyaç programı içerisinde farklı disiplinlerin rollerini de barındırdıkları için çok yönlü yaklaşımlar gerektirmektedir. Kalem Vakfı Okulları tasarlanırken de üst ölçekli bölgeleme vaziyet yerleşim kararları alınırken bu programa ilaveten iklim, ekonomi, topografya, sosyal ve kültür gibi pek çok konudan referanslar alınmıştır. Yapı üst ölçek bölgeleme kararları verilirken farklı yaş gruplarındaki kullanıcı profilleri irdelenmiş ve hem eğitimciler hem de öğrenciler için optimum tasarım kararları belirlenmiştir. Vaziyet plan kararlarında beyaz yaka ve mavi yaka görevli erişilebilirlikleri, öğrenci oyun alanları, avlulu içe dönük mekan kurgusu tercih edilmiştir. Açık / kapalı / yarı açık mekanlar üretilmiş ve kullanıcıların mekan konforları öncelenmiştir.

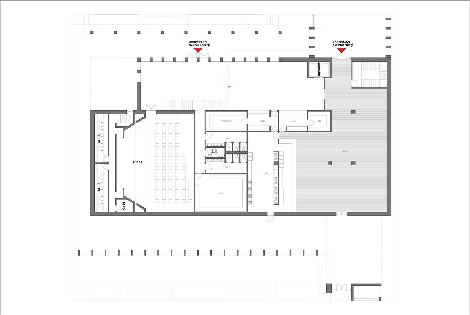
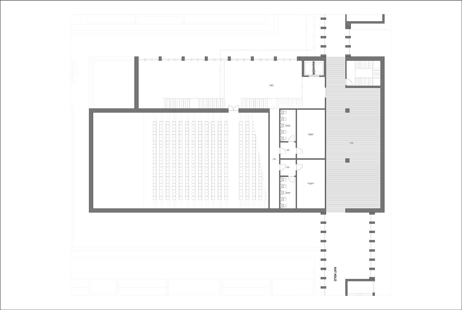
İhtiyaç programı dahilinde bulunan eğitim, spor, kültür, sosyal etkinlik, ibadet gibi pek çok fonksiyonlar farklı birimlerin oluşturduğu farklı avlular etrafında toplanmışlardır. Bu avlular etrafında öbekleşen farklı fonksiyondaki yapılar kendi içlerinde de arkadlarla güçlendirilmiş ve yatay sirkülasyon bağı kurmuştur. Bu yaklaşım kararları ile farklı yaştaki öğrenciler için hem güvenlik hem mahremiyet konusunda yüksek bir konfor hedeflenmiştir. Arkadlar bu aynı kampüs içerisindeki hem öğrenci hem eğiticiler için olağan bir günün avlulardaki durağanlığını doğrusal akışkanlık haline getirmiştir.

Tasarım kararları verilirken ihtiyaç programı bağlamında optimum eğitim; yatırım / işletme pratikleri değerlendirilmiştir. Yapı malzeme tercihleri de yine aynı kaygılarla değerlendirilmiş ve ekonomi / sosyoloji girdileri tasarım sırasında ortak referanslar olarak düşünülmüştür. Ekonomik, erişimi ve imalatı kolay doğal ve sıcak yapı malzemeleri tercih edilmiştir. Açık ve yarı açık mekanlarla ana işlevli kütleler desteklenmiştir.

Doğal iklimlendirme, doğal aydınlatma, tepe ışıklıkları, güneş kırıcıları, gri su kullanımı, otomasyon desteği ile kendi kendine yeten enerji, yeşil gibi tercihlerle sürdürülebilir çevre dostu bir kampüs üretimi hedeflenmiştir. Hem yatırım hem işletme maliyetleri hem de sosyal insan psikolojisi düşünülerek tasarım kararları verilmiş ve içerisinde pek çok disiplini barındıran kolektif bir proje üretilmiştir.







































