Çaycuma, Filyos Çayı vadisinin iki yanında yer alan yamaçlar arasında olan Filyos Çayı boyunca kuzey güney doğrultusunda gelişmekte olan bir Karadeniz ilçesidir. Çaycuma Spor Merkezi, mimari proje yarışması kapsamında hazırlanan bu projenin ana hedefi kentin kültürel, sosyal yaşamına ve sportif kültürüne katkıda bulunmaktır. Spor, amatör branşlardan profesyonel seviyelere kadar rekabeti, mücadeleyi, dostluğu içeren bir etkinliktir. Sağlıklı bireylerin dolayısıyla sağlık bir toplumun inşası için büyük bir öneme sahiptir.

Proje kapsamında oluşturulan yüzme havuzu, fitness salonu ile başta yüzme sporu olmak üzere kentteki sportif kültürün gelişiminin desteklenmesi hedeflenmiştir. Proje alanı güney yönüne doğru gelişmekte olan kentin çeperinde yapılaşmış olan son konut bölgesi ile ana kent parçası arasında kalan seyrek yapılaşma gösteren yeşil tampon bandın uç noktasında filyos çayı ile buluştuğu bir noktada yer almaktadır.

İmar planındaki verile göz önüne alındığında proje alanı batı yönünde park, diğer yönlerde arası yollarıyla çevrelenmiştir. Özellikle Filyos Çayı ile proje alanı arasından geçen 48 metrelik imar yolu gerek proje alanına, gerekse de imar planında tarif edilen Filyos Çayı boyunca oluşturulan spor ve kültürel tesis alanları ile çay kenarında yapılması öngörülen rekreasyon alanları ile ilişkisini koparmaktadır. Bu noktada imar yolunun problemli durumu tespit edilmiş olmakla birlikte projeye yarışmada çizilen sınırlar çerçevesinde yaklaşılmıştır.

Çaycuma Spor Merkezi Mimari proje yarışması kapsamında istenilen fonksiyonların çözümündeki en belirleyici unsur, kent ile yürüme mesafesinde bir ilişki kuran proje alanına kente merkezi yönünden gelen ulaşım aksının proje bünyesinde devam ettirilmesi oldu. Böylece kent-spor yapısı-spor alanları arasındaki süreklilik sağlanırken, aynı zamanda yapı içerisinde fonksiyonları örgütleyen avlu oluşturulmuş oldu.

Kent merkezinden proje alanına geldiğinizde sizi yapının girişi karşılar, geçirgen olarak tasarlana giriş mekanı sizi avluya ulaştırır. Zemin kotunda yüzme havuzu, kafe, satış birimi ve amfi tiyatroyla çevrelenen avlu, düşeyde fitness salonu, teras ve yine kafeyle ilişki kurmaktadır. Spor yapısının sosyal merkez olma iddiasını güçlendiren avlu, kültürfizik hareketlerinin yapılabileceği bir açık hava spor alanı ve toplanma mekanı olarak kurgulanmıştır. Açık, yarı açık mekanların deneyimlenebildiği avlu bir ucundan spor alanlarına doğru açılır.

Avlu ile ilişkili olarak kurgulanan amfi tiyatro üst kottaki kafe mekanı ile avlu sürekliliğini sağlarken aynı zamanda spor müsabakaları gibi toplu izleme etkinliklerine ve diğer sosyal aktivitelere imkan verecek nitelikte tasarlanmıştır.

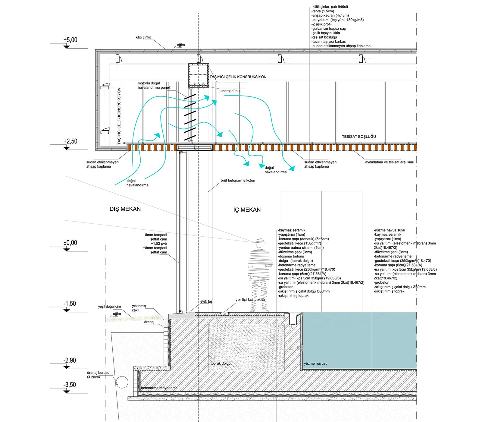
Havuz mekanı bir adet 12,5 m X 25 m büyüklüğünde havuz, bir adet çocuk havuzu, seyir basamakları ve servis destek ünitelerinde oluşmaktadır. Şeffaf bir cephe kurgusuyla ele alınan havuz mekanının park alanındaki yeşil ve avlu ile görsel bütünlüğü kurulmuştur. Aynı zamanda çatı ışıklıklarıyla birlikte gün ışığından maksimum faydalanma sağlanmıştır.

Proje alanındaki kottan da faydalanılarak park kotuna oturtulan mekan, kendi içerisinde oluşan basamaklarla bir yandan avluyla ilişki kurarken bir yandan seyir olanağı vermektedir. Kafe fonksiyonu proje alanının güneydoğu köşesinde zemin katta avlu, Filyos Çayı, spor alanlar ve havuz mekanı ile ilişkili olarak konumlandırılmıştır. Düşeyde teras mekanı devam eden kafe mekanı, açık ve yarı açık alanlarla ilişki kuruyor olması bakımından yapının yaşayan bir sosyal mekan olması durumuna katkıda bulunur. Filyos Çayı ile görsel bütünlük içerisinde kurgulanan fitness mekanı spor yaparken çayı ve şehri seyretme imkanı sunmaktadır. Kabuktaki kırılma hareketiyle ferah aydınlık bir mekan olarak tasarlanan salondan terasın açık, yarı açık mekanlarına ve kafeye erişilebilmektedir. Çevresiyle kuracağı görsel ilişkinin kalitesi açısından şeffaf bir cephe kurgusuyla tasarlanan mekanda, yapı cephesinde güneş kontrolü sağlanarak konfor gereksinimleri karşılanmıştır. Avlu üst kotunda kurgulanan sosyal teras açık, kapalı ve yarı açık mekanlarıyla zengin bir mekan deneyimi sunarken çevresine bir çok noktadan bakış açısı sunmaktadır. Avludan amfi tiyatro ile erişilen platforma, aynı zamanda fitness ve kafe kapalı mekanlarından da ulaşılabilmektedir. Teras havuz mekanıyla üst kottan görsel ilişki içerisindedir.










